
Preisliste
305 000 €
1 667 €/m²
Provisionsfrei für den Käufer
Anfrage für mehr Information oder Besichtigung
Infopaket
Zustand
BDS (auf Grundierung und Spachtelmasse)
Ausstattung
Unmöbliert
Entfernung
Letzte Aktualisierung
19.11.2025 t.
Anfragenanzahl
1 (Letzte 30 Tage)
Entfernung zu
- Stadtzentrum: 18km
- Flughafen Sofia (SOF): 25km
Ausblick
- Stadt
Bau
- Ziegelwerk
Administrative Information zum Angebot
GASVERSORGUNG, ELEKTRIZITÄT
- Strom
WASSERVERSORGUNG
- Wasser
KANALISATION
- Städtische Kanalisation
SANITÄR- UND HILFSANLAGEN
- Mögliches Parken an der Straße
- Offener Parkplatz
- Stellplatz
- Veranda
DÄMMUNG UND INNENAUSBAU
- Spachteln und Estrich
HOF UND GARTEN
- Garten
Der Text wurde ins Deutsche mithilfe einer automatischen Software übersetzt und es ist möglich, dass er Ungenauigkeiten enthält. Sie können den Text in der originalen Sprache oder seine Übersetzung in andere Sprachen lesen:
Vorverkauf.
Die Bauzeit für ein Haus beträgt ca. 1 Jahr.
Kauf ohne Provision.
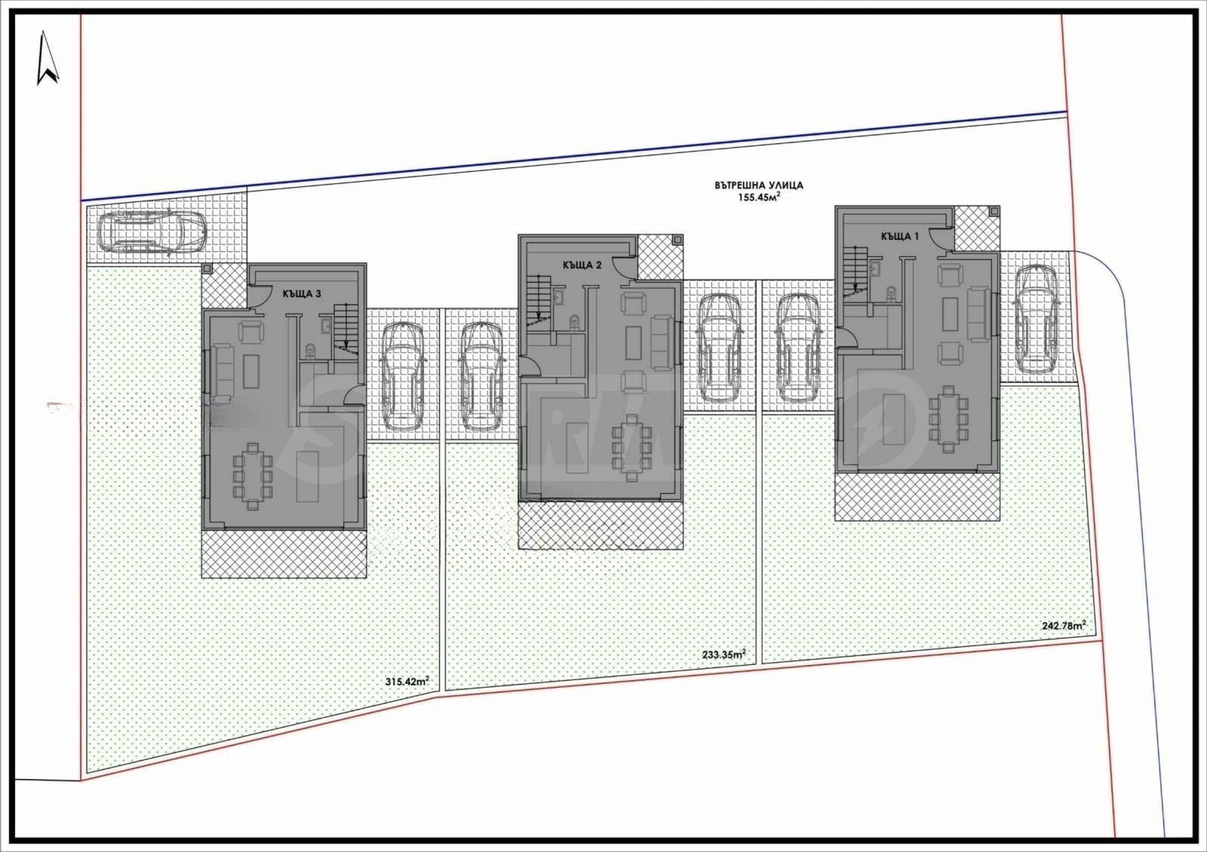
Wir präsentieren drei neu gestaltete Einfamilienhäuser mit eigenem Garten und Parkplätzen, gelegen in einer der ruhigsten und grünsten Gegenden von Novi Iskar.
Jedes Haus verfügt über zwei Parkplätze und einen eigenen Garten mit einer Fläche von 242,78 m² bis 315,42 m², der ein Gefühl von Privatsphäre, Platz zum Entspannen, Spielen für Kinder oder Gartenarbeit bietet. Der Zugang zu den Grundstücken wird durch eine gemeinsame interne Straße erleichtert.
Standort
Die Häuser befinden sich in günstiger Lage, in unmittelbarer Nähe einer Schule, Haltestellen des öffentlichen Nahverkehrs und bequemer Straßenanbindung, die einen einfachen Zugang zu den zentralen Teilen Sofias ermöglichen. Die Gegend bietet eine ruhige und angenehme Atmosphäre, nah an der Natur, aber gleichzeitig mit allen notwendigen Annehmlichkeiten für einen urbanen Lebensstil.
Merkmale
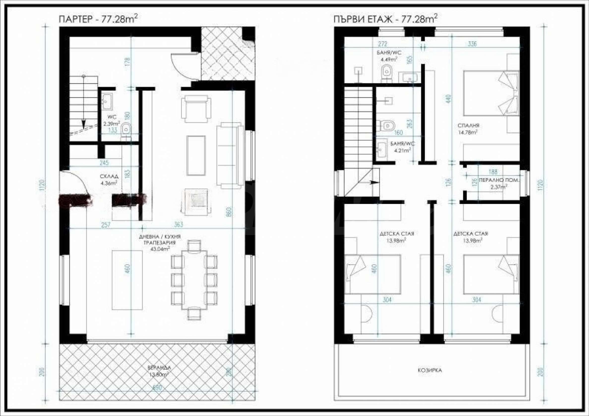
Jede Immobilie verfügt über eine Gesamtfläche von 183 m² und ist mit einer funktionalen Raumaufteilung gestaltet, die maximalen Komfort und Bequemlichkeit bietet:
Sie werden in den Graden der Fertigstellung gemäß dem bulgarischen Zivilgesetzbuch ausgestellt.
Es werden flexible Zahlungspläne angeboten, die auf die individuellen Präferenzen der Kunden zugeschnitten sind.
Wir freuen uns auf Ihre Anfrage.
Wenn Sie einen Besichtigungstermin für eine Immobilie vereinbaren möchten, an der Sie interessiert sind, oder eines unserer Büros besuchen möchten, kontaktieren Sie uns bitte. Um einen Termin für ein Treffen oder eine Besichtigung zu vereinbaren, können Sie die in der Anzeige angegebene Telefonnummer anrufen oder eine Anfrage per E-Mail senden. Unser Berater unterstützt Sie bei allen notwendigen Details und vereinbart einen für Sie passenden Termin.
Sie suchen die passende Immobilie für sich?
Zögern Sie nicht, uns zu kontaktieren und uns Ihre Bedürfnisse und Wünsche mitzuteilen. Unser Team führt eine gründliche Marktforschung durch, um Ihnen Immobilien anzubieten, die genau Ihren Kriterien entsprechen. Wir verfügen über ein außergewöhnliches Portfolio hochwertiger und exklusiver Häuser, die nur unseren Kunden zur Verfügung stehen. Um als Erster Informationen darüber zu erhalten, kontaktieren Sie uns.
Zusätzliche Dienstleistungen
Als geschätzter Kunde unseres Unternehmens haben Sie das Privileg, die Dienste unseres erfahrenen Rechtsteams völlig kostenlos in Anspruch zu nehmen. Darüber hinaus bieten wir umfassende Lösungen inklusive Sachversicherung, kostenloser Finanzberatung sowie günstigen Finanzierungskonditionen. Unsere Leistungen erstrecken sich auch auf die Bereiche Weiterverkauf, Vermietung und Hausverwaltung. Hochwertige Renovierungen und Einrichtungsarbeiten führen wir durch spezialisierte Unternehmen unserer Unternehmensgruppe durch, die uns als langjährige, professionelle Partner zur Seite stehen.
Besichtigungen
Wir können eine Besichtigung der Immobilie zu einer für Sie passenden Zeit vereinbaren. Bitte kontaktieren Sie den für dieses Angebot zuständigen Makler und teilen Sie ihm die von Ihnen gewünschte Uhrzeit mit.
Reservierung der Immobilie
Gegen eine nicht erstattete Anzahlung in Höhe von 2.000 Euro wird die Immobilie reserviert. Weitere Besichtigungen mit anderen Käufern finden nicht statt und Makler beginnt mit der Vorbereitung der Dokumente für den Abschluss des endgültigen Vertrags für Eigentumsübertragung. Bitte kontaktieren Sie den zuständigen Makler für mehr Information über den Kauf einer Immobilie und Zahlungsarten.
Zusatzleistungen und Kundendienst
Wir sind ein seriöses Unternehmen und werden nicht nur während des Kaufs, sondern auch danach bei Ihnen sein und Ihnen auf Ihren Wunsch zusätzliche Dienstleistungen anbieten, um die neu gekaufte Immobilie vollständig und nahtlos zu nutzen. Die Dienstleistungen, die wir anbieten können, umfassen die Erlangung einer Hypothekengenehmigung, eine Versicherung für bewegliche und unbewegliche Sachen, eine Lebensversicherung, eine Kranken- und Autoversicherung, Bau- und Reparaturaktivitäten, Möbel, Rechts- und Buchhaltungsdienstleistungen usw.
Bei uns können Sie nicht nur eine Immobilie mieten, sondern auch eine Reihe von Zusatzleistungen in Anspruch nehmen. Wir können Versicherungen für bewegliches und unbewegliches Vermögen, Lebensversicherungen, Kranken- und Kfz-Versicherungen, Bau- und Reparaturarbeiten, Möbel, Rechts- und Buchhaltungsdienstleistungen usw. anbieten.
Die Bauzeit für ein Haus beträgt ca. 1 Jahr.
Kauf ohne Provision.
Wir präsentieren drei neu gestaltete Einfamilienhäuser mit eigenem Garten und Parkplätzen, gelegen in einer der ruhigsten und grünsten Gegenden von Novi Iskar.
Jedes Haus verfügt über zwei Parkplätze und einen eigenen Garten mit einer Fläche von 242,78 m² bis 315,42 m², der ein Gefühl von Privatsphäre, Platz zum Entspannen, Spielen für Kinder oder Gartenarbeit bietet. Der Zugang zu den Grundstücken wird durch eine gemeinsame interne Straße erleichtert.
Standort
Die Häuser befinden sich in günstiger Lage, in unmittelbarer Nähe einer Schule, Haltestellen des öffentlichen Nahverkehrs und bequemer Straßenanbindung, die einen einfachen Zugang zu den zentralen Teilen Sofias ermöglichen. Die Gegend bietet eine ruhige und angenehme Atmosphäre, nah an der Natur, aber gleichzeitig mit allen notwendigen Annehmlichkeiten für einen urbanen Lebensstil.
Merkmale
Jede Immobilie verfügt über eine Gesamtfläche von 183 m² und ist mit einer funktionalen Raumaufteilung gestaltet, die maximalen Komfort und Bequemlichkeit bietet:
- Etage 1: Eingangshalle, Wohnzimmer mit Küche und Esszimmer, Badezimmer, Abstellraum;
- Etage 2: Hauptschlafzimmer mit eigenem Bad mit Toilette, zwei Schlafzimmer, Waschküche, Bad mit Toilette.
Sie werden in den Graden der Fertigstellung gemäß dem bulgarischen Zivilgesetzbuch ausgestellt.
Es werden flexible Zahlungspläne angeboten, die auf die individuellen Präferenzen der Kunden zugeschnitten sind.
Wir freuen uns auf Ihre Anfrage.
Wenn Sie einen Besichtigungstermin für eine Immobilie vereinbaren möchten, an der Sie interessiert sind, oder eines unserer Büros besuchen möchten, kontaktieren Sie uns bitte. Um einen Termin für ein Treffen oder eine Besichtigung zu vereinbaren, können Sie die in der Anzeige angegebene Telefonnummer anrufen oder eine Anfrage per E-Mail senden. Unser Berater unterstützt Sie bei allen notwendigen Details und vereinbart einen für Sie passenden Termin.
Sie suchen die passende Immobilie für sich?
Zögern Sie nicht, uns zu kontaktieren und uns Ihre Bedürfnisse und Wünsche mitzuteilen. Unser Team führt eine gründliche Marktforschung durch, um Ihnen Immobilien anzubieten, die genau Ihren Kriterien entsprechen. Wir verfügen über ein außergewöhnliches Portfolio hochwertiger und exklusiver Häuser, die nur unseren Kunden zur Verfügung stehen. Um als Erster Informationen darüber zu erhalten, kontaktieren Sie uns.
Zusätzliche Dienstleistungen
Als geschätzter Kunde unseres Unternehmens haben Sie das Privileg, die Dienste unseres erfahrenen Rechtsteams völlig kostenlos in Anspruch zu nehmen. Darüber hinaus bieten wir umfassende Lösungen inklusive Sachversicherung, kostenloser Finanzberatung sowie günstigen Finanzierungskonditionen. Unsere Leistungen erstrecken sich auch auf die Bereiche Weiterverkauf, Vermietung und Hausverwaltung. Hochwertige Renovierungen und Einrichtungsarbeiten führen wir durch spezialisierte Unternehmen unserer Unternehmensgruppe durch, die uns als langjährige, professionelle Partner zur Seite stehen.
Besichtigungen
Wir können eine Besichtigung der Immobilie zu einer für Sie passenden Zeit vereinbaren. Bitte kontaktieren Sie den für dieses Angebot zuständigen Makler und teilen Sie ihm die von Ihnen gewünschte Uhrzeit mit.
Reservierung der Immobilie
Gegen eine nicht erstattete Anzahlung in Höhe von 2.000 Euro wird die Immobilie reserviert. Weitere Besichtigungen mit anderen Käufern finden nicht statt und Makler beginnt mit der Vorbereitung der Dokumente für den Abschluss des endgültigen Vertrags für Eigentumsübertragung. Bitte kontaktieren Sie den zuständigen Makler für mehr Information über den Kauf einer Immobilie und Zahlungsarten.
Zusatzleistungen und Kundendienst
Wir sind ein seriöses Unternehmen und werden nicht nur während des Kaufs, sondern auch danach bei Ihnen sein und Ihnen auf Ihren Wunsch zusätzliche Dienstleistungen anbieten, um die neu gekaufte Immobilie vollständig und nahtlos zu nutzen. Die Dienstleistungen, die wir anbieten können, umfassen die Erlangung einer Hypothekengenehmigung, eine Versicherung für bewegliche und unbewegliche Sachen, eine Lebensversicherung, eine Kranken- und Autoversicherung, Bau- und Reparaturaktivitäten, Möbel, Rechts- und Buchhaltungsdienstleistungen usw.
Bei uns können Sie nicht nur eine Immobilie mieten, sondern auch eine Reihe von Zusatzleistungen in Anspruch nehmen. Wir können Versicherungen für bewegliches und unbewegliches Vermögen, Lebensversicherungen, Kranken- und Kfz-Versicherungen, Bau- und Reparaturarbeiten, Möbel, Rechts- und Buchhaltungsdienstleistungen usw. anbieten.
Lesen Sie den Text in anderen Sprachen (automatische Übersetzung)
Standort (ungefähr)
Auf der Karte ist der ungefähre Standort der Immobilie/des Wohnkomplexes mit roter Markierung angezeigt.
Preisliste
Unsere Top-Angebote über zum verkauf im Novi Iskar, Bulgarien
Immobilien nach Typ, Novi Iskar
Alle nach Typ
Beliebste Suchaufträge
- Landhäuser in Bulgarien
- Immobilien zur Miete in Bulgarien
- Immobilien zum Kauf in Bulgarien
- Häuser zum Kauf in Bulgarien
- Immobilien zur Miete im Varna
- Immobilien in Bulgarien
- Immobilien zum Kauf im Varna
- Häuser in Bulgarien
- Immobilien im Varna
- Immobilien zur Miete im Burgas



ORIGINAL: