REF#CH-POLIH-001 / Villa / Polychrono / Halkidiki Bezirk / Griechenland / Zum Verkauf Auf der Karte
 
                Schlafzimmer
4
Badezimmer
4
Offene Parkplätze
2
Toiletten
1

Gesamtfläche
175 m²
Grundstücksfläche
162 m²

Preis
                                                                                                
                                
                                     1 100 000 €                                                                    
                                                                 
                                                    
                    
                                                                                                                                    
                
                
            Anfrage für mehr Information oder Besichtigung
                        Infopaket                    
                    Zustand
                ausgezeichnet
            Ausstattung
                                    Ausgestattete Küche
                            
        Entfernung    
    
                Letzte Aktualisierung            
            
                29.10.2025 t.            
        Entfernung zu
- Stadtzentrum: 500m
- Flughafen : 85km
Ausblick
- Innenhof
- Meer
- Strand
Administrative Information zum Angebot
Der Text wurde ins Deutsche mithilfe einer automatischen Software übersetzt und es ist möglich, dass er Ungenauigkeiten enthält. Sie können den Text in der originalen Sprache oder seine Übersetzung in andere Sprachen lesen:
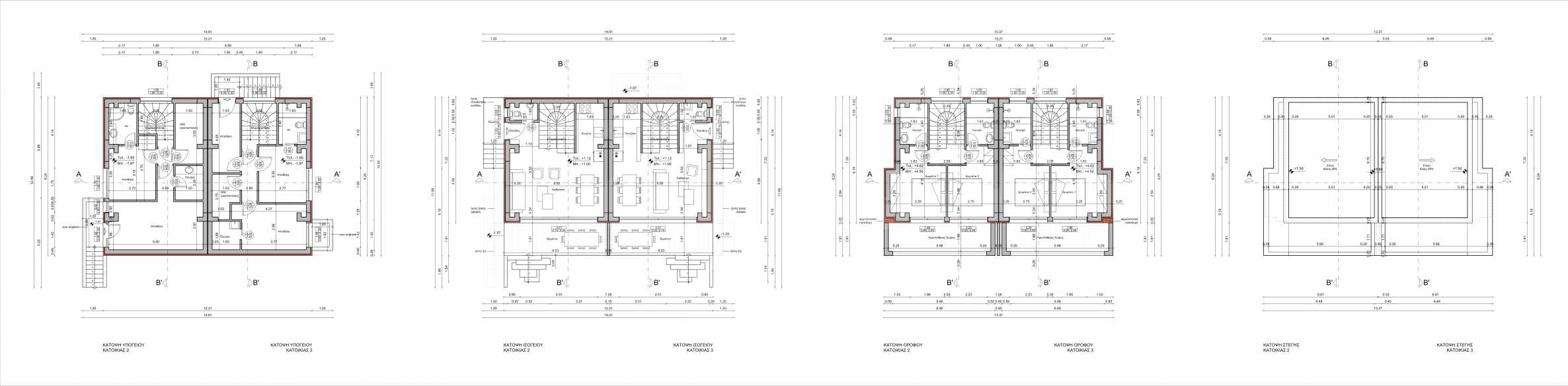
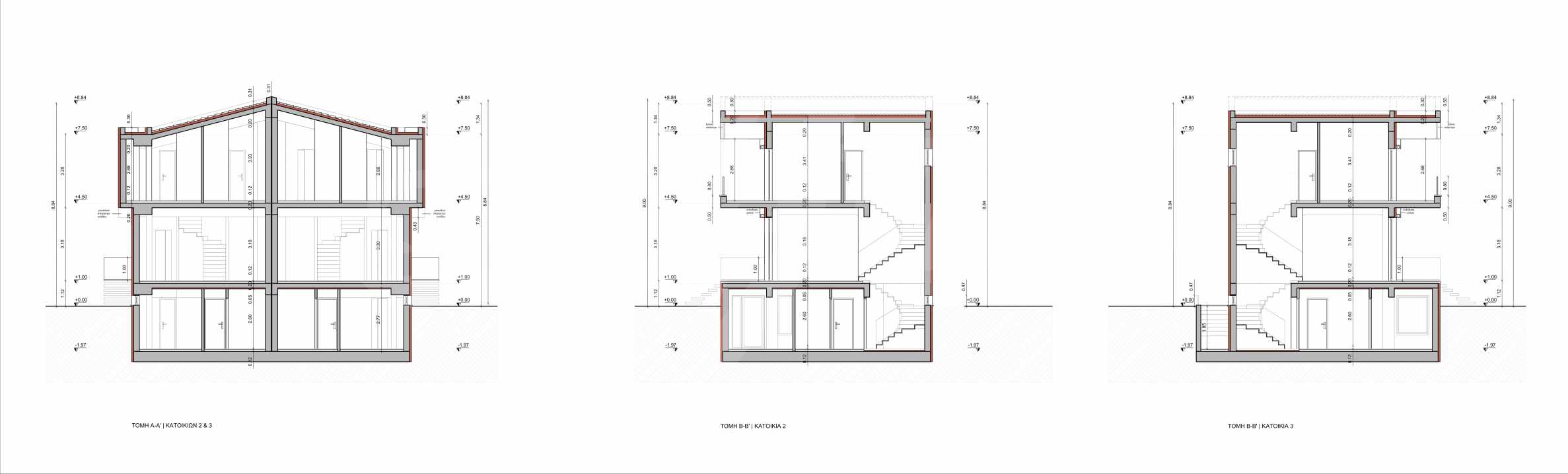
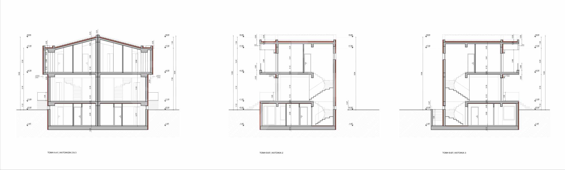
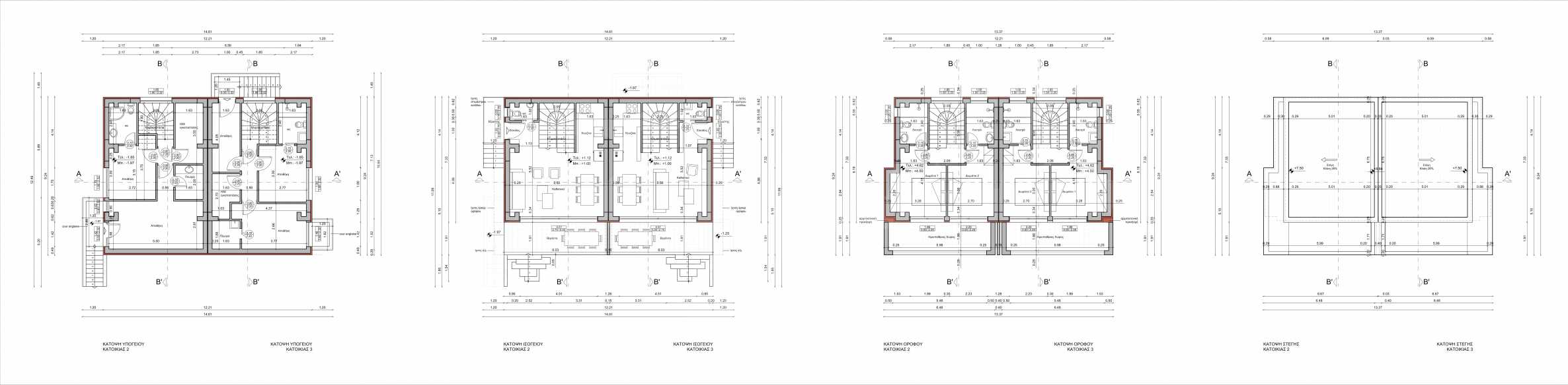
            Wir bieten Ihnen eine Villa in Neubau, erste Linie zum Meer mit direktem Zugang zum Strand, in Polychrono, Kassandra, Chalkidiki. Die Villa zeichnet sich durch modernes Design und Architektur, klare Linien und Funktionalität aus.
Parameter:
● Gesamtfläche - 175 m²;
● Wohnzimmer mit Küchenzeile und Essbereich;
● Schlafzimmer - 4;
● Badezimmer - 4;
● Hof - 162 m²;
● Erste Seelinie
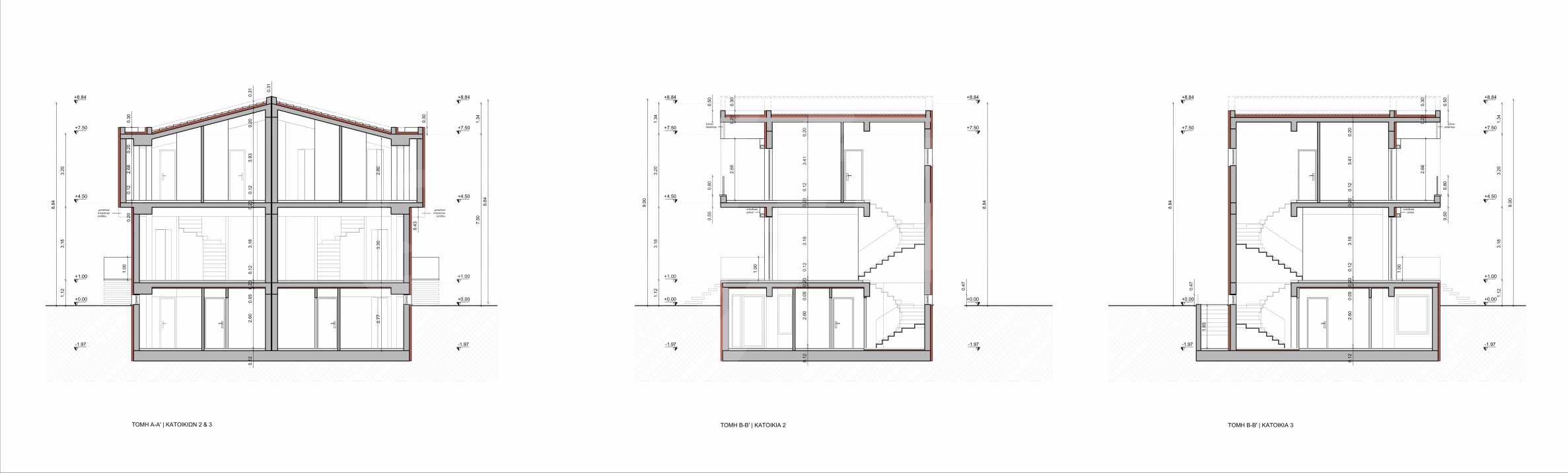
Verteilung:
● 1. Ebene, Keller - 2 Schlafzimmer, 2 Badezimmer;
● 2. Ebene, Erdgeschoss - Wohnzimmer mit Küche und Essbereich, WC;
● 3. Ebene, 1. Stock - 2 Schlafzimmer, 2 Badezimmer
        Parameter:
● Gesamtfläche - 175 m²;
● Wohnzimmer mit Küchenzeile und Essbereich;
● Schlafzimmer - 4;
● Badezimmer - 4;
● Hof - 162 m²;
● Erste Seelinie
Verteilung:
● 1. Ebene, Keller - 2 Schlafzimmer, 2 Badezimmer;
● 2. Ebene, Erdgeschoss - Wohnzimmer mit Küche und Essbereich, WC;
● 3. Ebene, 1. Stock - 2 Schlafzimmer, 2 Badezimmer
        
            
                             Lesen Sie den Text in anderen Sprachen (automatische Übersetzung)                                  
    
    
                Standort (ungefähr)
            
            Auf der Karte ist der ungefähre Standort der Immobilie/des Wohnkomplexes mit roter Markierung angezeigt.
                    
                        Unsere Top-Angebote über zum verkauf  im Polychrono, Griechenland                    
                    
                
                
                
            
 
                             
                 
    
 
                     ORIGINAL:
                        ORIGINAL: