Anzahl der Etagen
4
Etage
1
Zimmer
1
Badezimmer
1

Gesamtfläche
60.55 m²
Wohnfläche
54.02 m²
Gemeinschaftsräume
6.53 m²
Garten
29.01 m²
Zustand
In Bauphase
Geplante Fertigstellung
Dezember 2026

Preis
142 293 €
(ohne MwSt)
2 350 €/m²
(ohne MwSt)
Provisionsfrei für den Käufer
Anfrage für mehr Information oder Besichtigung
Infopaket
Zustand
BDS (auf Grundierung und Spachtelmasse)
Ausstattung
Heizung
Klimaanlagen / Multisplit-System / Gasheizung / Fußbodenheizung
Klimaanlage
Multisplit-System
Entfernung
Letzte Aktualisierung
09.02.2026 t.
Entfernung zu
- Stadtzentrum: 7km
- Flughafen Sofia (SOF): 17.6km
Bau
- Stahlbetonbau
Heizung
- Fußbodenheizung
- Gasheizung
- Klimaanlagen
- Multisplit-System
Klimaanlage
- Multisplit-System
Administrative Information zum Angebot
GASVERSORGUNG, ELEKTRIZITÄT
- Gas
- Strom
WASSERVERSORGUNG
- Wasserversorgung
FASSADE
- Außendämmung
SANITÄR- UND HILFSANLAGEN
- Badezimmer mit Toilette
DÄMMUNG UND INNENAUSBAU
- Spachteln und Estrich
EXTRAS IM GEBÄUDE
- Aufzug
- Luxuriöse Gemeinschaftsräume
HOF UND GARTEN
- Garten
Der Text wurde ins Deutsche mithilfe einer automatischen Software übersetzt und es ist möglich, dass er Ungenauigkeiten enthält. Sie können den Text in der originalen Sprache oder seine Übersetzung in andere Sprachen lesen:
Wir präsentieren Ihnen eine 1-Zimmer-Wohnung zum Kauf in einem neuen Wohnkomplex in einer der begehrtesten und ruhigsten Lagen des Bezirks Boyana. Die Wohnung vereint moderne Architektur, funktionale Raumaufteilung und einen hohen Wohnstandard. Der Komplex wurde mit Fokus auf Lebensqualität, Privatsphäre und Harmonie mit der Natur gestaltet und bietet Panoramablick auf die Berge und die Stadt sowie eine günstige Wohnlage. Er ist eine ausgezeichnete Wahl sowohl für den Eigenbedarf als auch als Kapitalanlage in einer Gegend mit nachhaltiger Nachfrage.
VOR AKT 14!
Geplantes Gesetz 16 – Dezember 2026
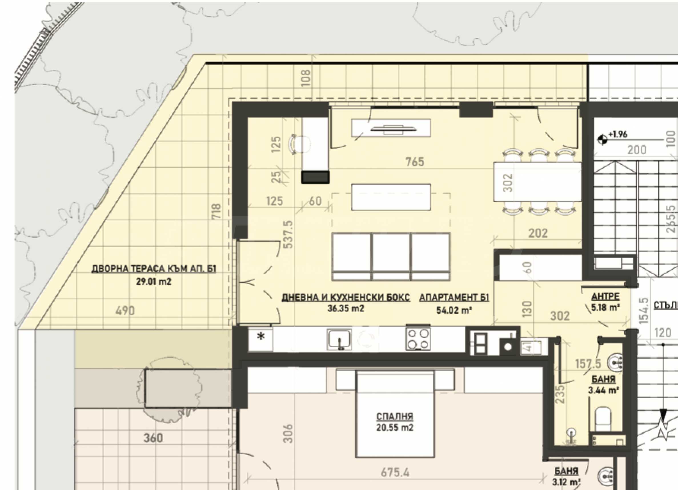
Die geräumige Einzimmerwohnung befindet sich im ersten Obergeschoss von Gebäude B und verfügt über eine Gesamtfläche von 60,55 m², eine Nettofläche von 54,02 m² sowie einen privaten Hof von 29,01 m². Die Wohnung ist nach Westen/Norden ausgerichtet. Sie wird nach bulgarischen Standards ausgebaut und ist mit Gasheizung inklusive Fußbodenheizung sowie Anschlüssen für Klimaanlagen ausgestattet.
Der angegebene Preis versteht sich exklusive Mehrwertsteuer.
Standort:
• Schneller Zugang zum Zar-Boris-III.-Boulevard, zum Nikola-Petkov-Boulevard und zur Ringstraße;
• In der Nähe von privaten und öffentlichen Schulen und Kindergärten;
• In der Nähe: Nationalmuseum, Friedensflaggenpark, Residenz Boyana;
• Öffentliche Verkehrsmittel sind etwa 550 m zu Fuß erreichbar.
Über den Komplex:
• Drei unabhängige vierstöckige Wohngebäude – A, B und C;
• Garagen, Parkplätze, Abstellräume;
• Separate Eingänge, Treppenhäuser und Aufzüge für jedes Gebäude;
• Fassade aus Holzverbundwerkstoff und anthrazitfarbenem Putz, die sich harmonisch in die Umgebung einfügt.
Technische Merkmale:
• Monolithische Stahlbetonkonstruktion;
• Innen- und Fassadenwände aus 25 cm großen Porotherm-Keramikblöcken;
• Wärmedämmung der Fassaden mit Steinwolle – 10–12 cm;
• Mehrschichtige Abdichtung – Membran- und Bitumensysteme für dauerhaften Schutz;
• Stahlbetondach, wärmegedämmt mit 10 cm Polyurethanschaum über der Stahlbetonplatte, mit Stahlbetonboden und Abdichtung;
• Dach über einem beheizten Raum – Stahlbeton, mit 10 cm Polyurethanschaum-Wärmedämmung über der Bodenplatte, Stahlbetonboden und Endbodenbelag;
• Erkerfenster, wärmegedämmt mit 15 cm Mineralwolle unter der Stahlbetonplatte, darüber 5 cm EPS, Zementestrich und Bodenbelag;
• Geschoss über einem unbeheizten Raum, wärmegedämmt mit 10 cm XPS unter der Stahlbetonplatte, ergänzt durch 5 cm EPS, Zementestrich und Bodenbelag.
• Individuelle Gasheizung mit Fußbodenheizung in jeder Wohnung;
• Multi-Split-Klimaanlage mit direkter Verdunstung – individuell für jede Wohnung;
• PVC-Fenster mit Doppelverglasung;
• Glasgeländer und moderne Fassadenelemente, die harmonisch in die Umgebung integriert sind;
• Das Gebäude erfüllt alle gesetzlichen Anforderungen an die Energieeffizienzklasse B.
Wir freuen uns auf Ihre Anfrage.
Wenn Sie eine Immobilie besichtigen möchten, die Sie interessiert, oder eines unserer Büros besuchen möchten, kontaktieren Sie uns bitte. Um einen Termin für eine Besichtigung oder ein Treffen zu vereinbaren, rufen Sie uns bitte unter der in der Anzeige angegebenen Telefonnummer an oder senden Sie uns eine Anfrage per E-Mail. Unser Berater unterstützt Sie gerne mit allen notwendigen Informationen und findet einen passenden Termin für Sie.
Sind Sie auf der Suche nach der passenden Immobilie für Sie?
Zögern Sie nicht, uns zu kontaktieren und uns Ihre Wünsche und Vorlieben mitzuteilen. Unser Team führt eine gründliche Marktanalyse durch, um Ihnen Immobilien anzubieten, die genau Ihren Kriterien entsprechen. Wir verfügen über ein außergewöhnliches Portfolio an hochwertigen und exklusiven Häusern, die nur unseren Kunden zur Verfügung stehen. Um als Erster Informationen darüber zu erhalten, kontaktieren Sie uns.
Zusätzliche Dienstleistungen
Als geschätzter Kunde unseres Unternehmens genießen Sie den Vorteil, die Dienste unseres erfahrenen Rechtsteams kostenfrei in Anspruch zu nehmen. Darüber hinaus bieten wir Ihnen umfassende Lösungen, darunter Gebäudeversicherungen, kostenlose Finanzberatung sowie attraktive Finanzierungskonditionen. Unser Leistungsspektrum umfasst auch die Bereiche Wiederverkauf, Vermietung und Immobilienverwaltung. Hochwertige Renovierungen und Einrichtungsarbeiten vermitteln wir Ihnen über spezialisierte Unternehmen unserer Unternehmensgruppe, mit denen wir seit Langem zusammenarbeiten.
Besichtigungen
Wir können eine Besichtigung der Immobilie zu einer für Sie passenden Zeit vereinbaren. Bitte kontaktieren Sie den für dieses Angebot zuständigen Makler und teilen Sie ihm die von Ihnen gewünschte Uhrzeit mit.
Reservierung der Immobilie
Gegen eine nicht erstattete Anzahlung in Höhe von 2.000 Euro wird die Immobilie reserviert. Weitere Besichtigungen mit anderen Käufern finden nicht statt und Makler beginnt mit der Vorbereitung der Dokumente für den Abschluss des endgültigen Vertrags für Eigentumsübertragung. Bitte kontaktieren Sie den zuständigen Makler für mehr Information über den Kauf einer Immobilie und Zahlungsarten.
Zusatzleistungen und Kundendienst
Wir sind ein seriöses Unternehmen und werden nicht nur während des Kaufs, sondern auch danach bei Ihnen sein und Ihnen auf Ihren Wunsch zusätzliche Dienstleistungen anbieten, um die neu gekaufte Immobilie vollständig und nahtlos zu nutzen. Die Dienstleistungen, die wir anbieten können, umfassen die Erlangung einer Hypothekengenehmigung, eine Versicherung für bewegliche und unbewegliche Sachen, eine Lebensversicherung, eine Kranken- und Autoversicherung, Bau- und Reparaturaktivitäten, Möbel, Rechts- und Buchhaltungsdienstleistungen usw.
Bei uns können Sie nicht nur eine Immobilie mieten, sondern auch eine Reihe von Zusatzleistungen in Anspruch nehmen. Wir können Versicherungen für bewegliches und unbewegliches Vermögen, Lebensversicherungen, Kranken- und Kfz-Versicherungen, Bau- und Reparaturarbeiten, Möbel, Rechts- und Buchhaltungsdienstleistungen usw. anbieten.
VOR AKT 14!
Geplantes Gesetz 16 – Dezember 2026
Die geräumige Einzimmerwohnung befindet sich im ersten Obergeschoss von Gebäude B und verfügt über eine Gesamtfläche von 60,55 m², eine Nettofläche von 54,02 m² sowie einen privaten Hof von 29,01 m². Die Wohnung ist nach Westen/Norden ausgerichtet. Sie wird nach bulgarischen Standards ausgebaut und ist mit Gasheizung inklusive Fußbodenheizung sowie Anschlüssen für Klimaanlagen ausgestattet.
Der angegebene Preis versteht sich exklusive Mehrwertsteuer.
Standort:
• Schneller Zugang zum Zar-Boris-III.-Boulevard, zum Nikola-Petkov-Boulevard und zur Ringstraße;
• In der Nähe von privaten und öffentlichen Schulen und Kindergärten;
• In der Nähe: Nationalmuseum, Friedensflaggenpark, Residenz Boyana;
• Öffentliche Verkehrsmittel sind etwa 550 m zu Fuß erreichbar.
Über den Komplex:
• Drei unabhängige vierstöckige Wohngebäude – A, B und C;
• Garagen, Parkplätze, Abstellräume;
• Separate Eingänge, Treppenhäuser und Aufzüge für jedes Gebäude;
• Fassade aus Holzverbundwerkstoff und anthrazitfarbenem Putz, die sich harmonisch in die Umgebung einfügt.
Technische Merkmale:
• Monolithische Stahlbetonkonstruktion;
• Innen- und Fassadenwände aus 25 cm großen Porotherm-Keramikblöcken;
• Wärmedämmung der Fassaden mit Steinwolle – 10–12 cm;
• Mehrschichtige Abdichtung – Membran- und Bitumensysteme für dauerhaften Schutz;
• Stahlbetondach, wärmegedämmt mit 10 cm Polyurethanschaum über der Stahlbetonplatte, mit Stahlbetonboden und Abdichtung;
• Dach über einem beheizten Raum – Stahlbeton, mit 10 cm Polyurethanschaum-Wärmedämmung über der Bodenplatte, Stahlbetonboden und Endbodenbelag;
• Erkerfenster, wärmegedämmt mit 15 cm Mineralwolle unter der Stahlbetonplatte, darüber 5 cm EPS, Zementestrich und Bodenbelag;
• Geschoss über einem unbeheizten Raum, wärmegedämmt mit 10 cm XPS unter der Stahlbetonplatte, ergänzt durch 5 cm EPS, Zementestrich und Bodenbelag.
• Individuelle Gasheizung mit Fußbodenheizung in jeder Wohnung;
• Multi-Split-Klimaanlage mit direkter Verdunstung – individuell für jede Wohnung;
• PVC-Fenster mit Doppelverglasung;
• Glasgeländer und moderne Fassadenelemente, die harmonisch in die Umgebung integriert sind;
• Das Gebäude erfüllt alle gesetzlichen Anforderungen an die Energieeffizienzklasse B.
Wir freuen uns auf Ihre Anfrage.
Wenn Sie eine Immobilie besichtigen möchten, die Sie interessiert, oder eines unserer Büros besuchen möchten, kontaktieren Sie uns bitte. Um einen Termin für eine Besichtigung oder ein Treffen zu vereinbaren, rufen Sie uns bitte unter der in der Anzeige angegebenen Telefonnummer an oder senden Sie uns eine Anfrage per E-Mail. Unser Berater unterstützt Sie gerne mit allen notwendigen Informationen und findet einen passenden Termin für Sie.
Sind Sie auf der Suche nach der passenden Immobilie für Sie?
Zögern Sie nicht, uns zu kontaktieren und uns Ihre Wünsche und Vorlieben mitzuteilen. Unser Team führt eine gründliche Marktanalyse durch, um Ihnen Immobilien anzubieten, die genau Ihren Kriterien entsprechen. Wir verfügen über ein außergewöhnliches Portfolio an hochwertigen und exklusiven Häusern, die nur unseren Kunden zur Verfügung stehen. Um als Erster Informationen darüber zu erhalten, kontaktieren Sie uns.
Zusätzliche Dienstleistungen
Als geschätzter Kunde unseres Unternehmens genießen Sie den Vorteil, die Dienste unseres erfahrenen Rechtsteams kostenfrei in Anspruch zu nehmen. Darüber hinaus bieten wir Ihnen umfassende Lösungen, darunter Gebäudeversicherungen, kostenlose Finanzberatung sowie attraktive Finanzierungskonditionen. Unser Leistungsspektrum umfasst auch die Bereiche Wiederverkauf, Vermietung und Immobilienverwaltung. Hochwertige Renovierungen und Einrichtungsarbeiten vermitteln wir Ihnen über spezialisierte Unternehmen unserer Unternehmensgruppe, mit denen wir seit Langem zusammenarbeiten.
Besichtigungen
Wir können eine Besichtigung der Immobilie zu einer für Sie passenden Zeit vereinbaren. Bitte kontaktieren Sie den für dieses Angebot zuständigen Makler und teilen Sie ihm die von Ihnen gewünschte Uhrzeit mit.
Reservierung der Immobilie
Gegen eine nicht erstattete Anzahlung in Höhe von 2.000 Euro wird die Immobilie reserviert. Weitere Besichtigungen mit anderen Käufern finden nicht statt und Makler beginnt mit der Vorbereitung der Dokumente für den Abschluss des endgültigen Vertrags für Eigentumsübertragung. Bitte kontaktieren Sie den zuständigen Makler für mehr Information über den Kauf einer Immobilie und Zahlungsarten.
Zusatzleistungen und Kundendienst
Wir sind ein seriöses Unternehmen und werden nicht nur während des Kaufs, sondern auch danach bei Ihnen sein und Ihnen auf Ihren Wunsch zusätzliche Dienstleistungen anbieten, um die neu gekaufte Immobilie vollständig und nahtlos zu nutzen. Die Dienstleistungen, die wir anbieten können, umfassen die Erlangung einer Hypothekengenehmigung, eine Versicherung für bewegliche und unbewegliche Sachen, eine Lebensversicherung, eine Kranken- und Autoversicherung, Bau- und Reparaturaktivitäten, Möbel, Rechts- und Buchhaltungsdienstleistungen usw.
Bei uns können Sie nicht nur eine Immobilie mieten, sondern auch eine Reihe von Zusatzleistungen in Anspruch nehmen. Wir können Versicherungen für bewegliches und unbewegliches Vermögen, Lebensversicherungen, Kranken- und Kfz-Versicherungen, Bau- und Reparaturarbeiten, Möbel, Rechts- und Buchhaltungsdienstleistungen usw. anbieten.
Lesen Sie den Text in anderen Sprachen (automatische Übersetzung)
Standort (ungefähr)
Auf der Karte ist der ungefähre Standort der Immobilie/des Wohnkomplexes mit roter Markierung angezeigt.
Unsere Top-Angebote über zum verkauf im Sofia, Bulgarien
Immobilien nach Region, Sofia
- Immobilien in Stt."Malinova Dolina"
- Immobilien in Stt."Krustova Vada"
- Immobilien in Stt."Manastirski Livadi - East"
- Immobilien in Stt."Center"
- Immobilien in Stt."Boyana"
- Immobilien in Stt."Dragalevtsi"
- Immobilien in Stt."Vitosha"
- Immobilien in Stt."Lozenets"
- Immobilien in Stt."Simeonovo"
- Immobilien in Stt."Ovcha Kupel"


ORIGINAL: