REF#LXH-136665 / Haus / Vetren Viertel / Burgas (Burgas) / Burgas Bezirk / Bulgarien / Zum Verkauf Auf der Karte
Anzahl der Etagen
3
Zimmer
4
Schlafzimmer
3
Badezimmer
4
Offene Parkplätze
1
Balkone (Terrassen)
1
Keller
ja

Wohnfläche
185 m²
Grundstücksfläche
210 m²

Preis
255 000 €
Anfrage für mehr Information oder Besichtigung
Infopaket
Zustand
BDS (auf Grundierung und Spachtelmasse)
Ausstattung
Unmöbliert
Entfernung
Letzte Aktualisierung
06.01.2026 t.
Entfernung zu
- Flughafen Burgas (BOJ): 15km
Ausblick
- Wald
Bau
- Stahlbetonbau
- Ziegelwerk
Administrative Information zum Angebot
GASVERSORGUNG, ELEKTRIZITÄT
- Strom
WASSERVERSORGUNG
- Wasserversorgung
KANALISATION
- Hauptdrainage
DÄMMUNG UND INNENAUSBAU
- Spachteln und Estrich
Der Text wurde ins Deutsche mithilfe einer automatischen Software übersetzt und es ist möglich, dass er Ungenauigkeiten enthält. Sie können den Text in der originalen Sprache oder seine Übersetzung in andere Sprachen lesen:
Wir bieten ein neu gebautes Haus im Stadtteil "Vetren" zum Verkauf an, 10 km von Burgas und 15 km vom Flughafen entfernt.
Im Bau.
Voraussichtlicher Act 16 - März 2027
Das Anwesen hat eine Gesamtfläche von 185 m² und befindet sich auf einem eigenen, 210 m² großen Grundstück mit einem Parkplatz.
Verteilung:
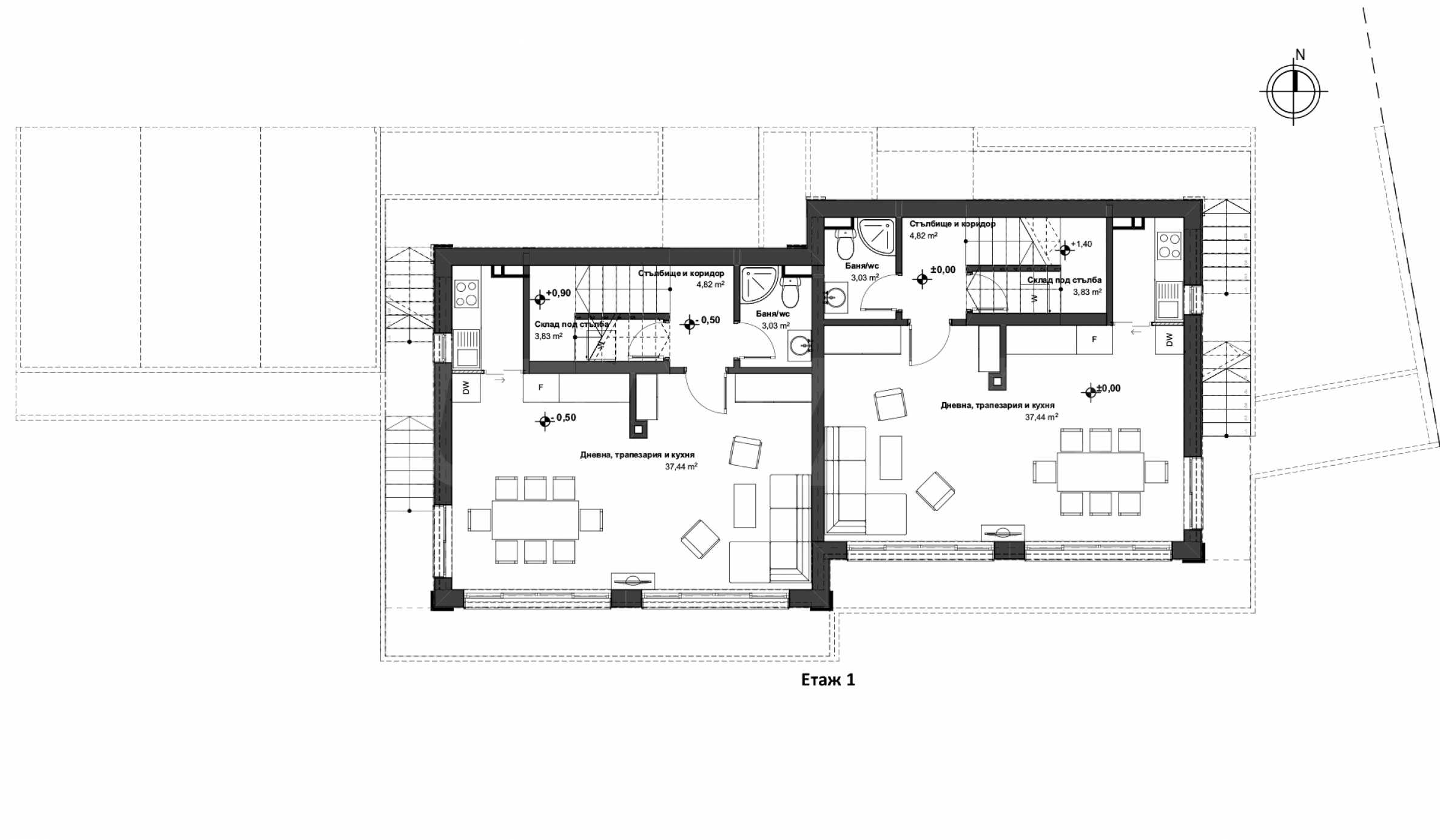
• erste Ebene: großes Wohnzimmer mit Küche und Esszimmer, Badezimmer mit Toilette und Abstellraum;
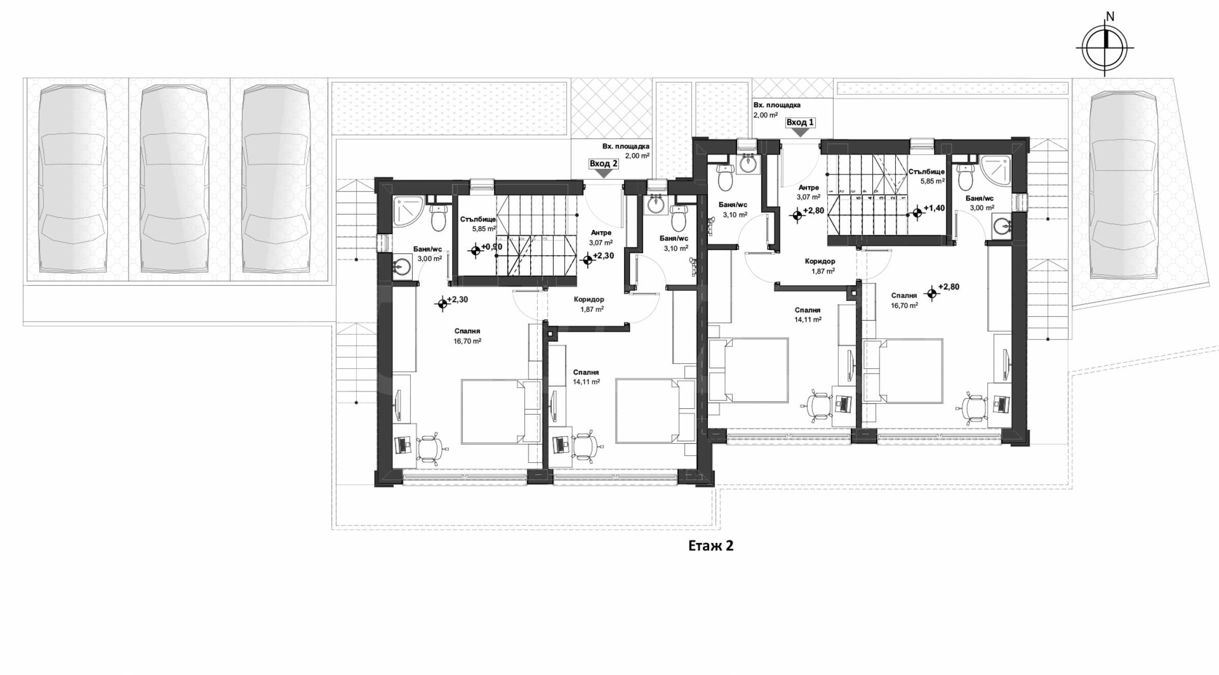
• zweite Ebene: zwei Schlafzimmer, jeweils mit eigenem Badezimmer mit WC;
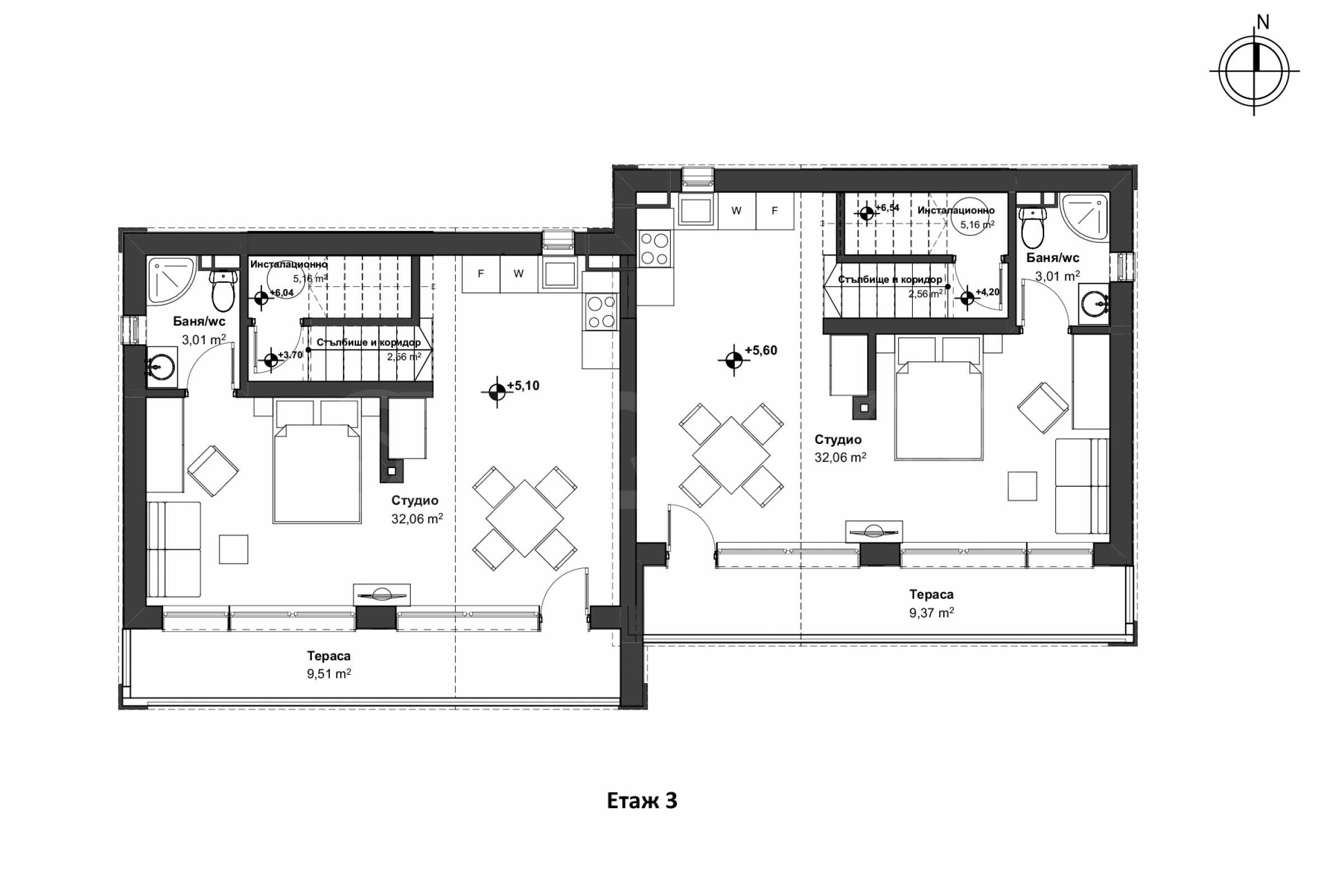
• dritte Ebene: geräumiges Studio mit Platz für eine Küchenzeile, ein Badezimmer mit WC und eine Terrasse mit Panoramablick.
Das Haus wird im fertiggestellten Zustand gemäß bulgarischen Baustandards vermietet, mit der Option auf schlüsselfertige Übergabe.
Es handelt sich um zwei Villen, die auch zusammen erworben werden können.
* Der angegebene Preis gilt für ein Haus.
Wir freuen uns auf Ihre Anfrage.
Wenn Sie eine Immobilie besichtigen möchten, die Sie interessiert, oder eines unserer Büros besuchen möchten, kontaktieren Sie uns bitte. Um einen Termin für eine Besichtigung oder ein Treffen zu vereinbaren, rufen Sie uns bitte unter der in der Anzeige angegebenen Telefonnummer an oder senden Sie uns eine Anfrage per E-Mail. Unser Berater unterstützt Sie gerne mit allen notwendigen Informationen und findet einen passenden Termin für Sie.
Sind Sie auf der Suche nach der passenden Immobilie für sich?
Zögern Sie nicht, uns zu kontaktieren und uns Ihre Wünsche und Vorlieben mitzuteilen. Unser Team führt eine gründliche Marktanalyse durch, um Ihnen Immobilien anzubieten, die genau Ihren Kriterien entsprechen. Wir verfügen über ein außergewöhnliches Portfolio an hochwertigen und exklusiven Häusern, die nur unseren Kunden zur Verfügung stehen. Um als Erster Informationen darüber zu erhalten, kontaktieren Sie uns.
Zusätzliche Dienstleistungen
Als geschätzter Kunde unseres Unternehmens genießen Sie den Vorteil, die Dienste unseres erfahrenen Rechtsteams kostenfrei in Anspruch zu nehmen. Darüber hinaus bieten wir Ihnen umfassende Lösungen, darunter Gebäudeversicherungen, kostenlose Finanzberatung sowie attraktive Finanzierungskonditionen. Unser Leistungsspektrum umfasst auch die Bereiche Wiederverkauf, Vermietung und Immobilienverwaltung. Hochwertige Renovierungen und Einrichtungsarbeiten vermitteln wir Ihnen über spezialisierte Unternehmen unserer Unternehmensgruppe, mit denen wir seit Langem zusammenarbeiten.
Besichtigungen
Wir können eine Besichtigung der Immobilie zu einer für Sie passenden Zeit vereinbaren. Bitte kontaktieren Sie den für dieses Angebot zuständigen Makler und teilen Sie ihm die von Ihnen gewünschte Uhrzeit mit.
Reservierung der Immobilie
Gegen eine nicht erstattete Anzahlung in Höhe von 2.000 Euro wird die Immobilie reserviert. Weitere Besichtigungen mit anderen Käufern finden nicht statt und Makler beginnt mit der Vorbereitung der Dokumente für den Abschluss des endgültigen Vertrags für Eigentumsübertragung. Bitte kontaktieren Sie den zuständigen Makler für mehr Information über den Kauf einer Immobilie und Zahlungsarten.
Zusatzleistungen und Kundendienst
Wir sind ein seriöses Unternehmen und werden nicht nur während des Kaufs, sondern auch danach bei Ihnen sein und Ihnen auf Ihren Wunsch zusätzliche Dienstleistungen anbieten, um die neu gekaufte Immobilie vollständig und nahtlos zu nutzen. Die Dienstleistungen, die wir anbieten können, umfassen die Erlangung einer Hypothekengenehmigung, eine Versicherung für bewegliche und unbewegliche Sachen, eine Lebensversicherung, eine Kranken- und Autoversicherung, Bau- und Reparaturaktivitäten, Möbel, Rechts- und Buchhaltungsdienstleistungen usw.
Bei uns können Sie nicht nur eine Immobilie mieten, sondern auch eine Reihe von Zusatzleistungen in Anspruch nehmen. Wir können Versicherungen für bewegliches und unbewegliches Vermögen, Lebensversicherungen, Kranken- und Kfz-Versicherungen, Bau- und Reparaturarbeiten, Möbel, Rechts- und Buchhaltungsdienstleistungen usw. anbieten.
Im Bau.
Voraussichtlicher Act 16 - März 2027
Das Anwesen hat eine Gesamtfläche von 185 m² und befindet sich auf einem eigenen, 210 m² großen Grundstück mit einem Parkplatz.
Verteilung:
• erste Ebene: großes Wohnzimmer mit Küche und Esszimmer, Badezimmer mit Toilette und Abstellraum;
• zweite Ebene: zwei Schlafzimmer, jeweils mit eigenem Badezimmer mit WC;
• dritte Ebene: geräumiges Studio mit Platz für eine Küchenzeile, ein Badezimmer mit WC und eine Terrasse mit Panoramablick.
Das Haus wird im fertiggestellten Zustand gemäß bulgarischen Baustandards vermietet, mit der Option auf schlüsselfertige Übergabe.
Es handelt sich um zwei Villen, die auch zusammen erworben werden können.
* Der angegebene Preis gilt für ein Haus.
Wir freuen uns auf Ihre Anfrage.
Wenn Sie eine Immobilie besichtigen möchten, die Sie interessiert, oder eines unserer Büros besuchen möchten, kontaktieren Sie uns bitte. Um einen Termin für eine Besichtigung oder ein Treffen zu vereinbaren, rufen Sie uns bitte unter der in der Anzeige angegebenen Telefonnummer an oder senden Sie uns eine Anfrage per E-Mail. Unser Berater unterstützt Sie gerne mit allen notwendigen Informationen und findet einen passenden Termin für Sie.
Sind Sie auf der Suche nach der passenden Immobilie für sich?
Zögern Sie nicht, uns zu kontaktieren und uns Ihre Wünsche und Vorlieben mitzuteilen. Unser Team führt eine gründliche Marktanalyse durch, um Ihnen Immobilien anzubieten, die genau Ihren Kriterien entsprechen. Wir verfügen über ein außergewöhnliches Portfolio an hochwertigen und exklusiven Häusern, die nur unseren Kunden zur Verfügung stehen. Um als Erster Informationen darüber zu erhalten, kontaktieren Sie uns.
Zusätzliche Dienstleistungen
Als geschätzter Kunde unseres Unternehmens genießen Sie den Vorteil, die Dienste unseres erfahrenen Rechtsteams kostenfrei in Anspruch zu nehmen. Darüber hinaus bieten wir Ihnen umfassende Lösungen, darunter Gebäudeversicherungen, kostenlose Finanzberatung sowie attraktive Finanzierungskonditionen. Unser Leistungsspektrum umfasst auch die Bereiche Wiederverkauf, Vermietung und Immobilienverwaltung. Hochwertige Renovierungen und Einrichtungsarbeiten vermitteln wir Ihnen über spezialisierte Unternehmen unserer Unternehmensgruppe, mit denen wir seit Langem zusammenarbeiten.
Besichtigungen
Wir können eine Besichtigung der Immobilie zu einer für Sie passenden Zeit vereinbaren. Bitte kontaktieren Sie den für dieses Angebot zuständigen Makler und teilen Sie ihm die von Ihnen gewünschte Uhrzeit mit.
Reservierung der Immobilie
Gegen eine nicht erstattete Anzahlung in Höhe von 2.000 Euro wird die Immobilie reserviert. Weitere Besichtigungen mit anderen Käufern finden nicht statt und Makler beginnt mit der Vorbereitung der Dokumente für den Abschluss des endgültigen Vertrags für Eigentumsübertragung. Bitte kontaktieren Sie den zuständigen Makler für mehr Information über den Kauf einer Immobilie und Zahlungsarten.
Zusatzleistungen und Kundendienst
Wir sind ein seriöses Unternehmen und werden nicht nur während des Kaufs, sondern auch danach bei Ihnen sein und Ihnen auf Ihren Wunsch zusätzliche Dienstleistungen anbieten, um die neu gekaufte Immobilie vollständig und nahtlos zu nutzen. Die Dienstleistungen, die wir anbieten können, umfassen die Erlangung einer Hypothekengenehmigung, eine Versicherung für bewegliche und unbewegliche Sachen, eine Lebensversicherung, eine Kranken- und Autoversicherung, Bau- und Reparaturaktivitäten, Möbel, Rechts- und Buchhaltungsdienstleistungen usw.
Bei uns können Sie nicht nur eine Immobilie mieten, sondern auch eine Reihe von Zusatzleistungen in Anspruch nehmen. Wir können Versicherungen für bewegliches und unbewegliches Vermögen, Lebensversicherungen, Kranken- und Kfz-Versicherungen, Bau- und Reparaturarbeiten, Möbel, Rechts- und Buchhaltungsdienstleistungen usw. anbieten.
Lesen Sie den Text in anderen Sprachen (automatische Übersetzung)
Standort (ungefähr)
Auf der Karte ist der ungefähre Standort der Immobilie/des Wohnkomplexes mit roter Markierung angezeigt.
Unsere Top-Angebote über zum verkauf im Burgas, Bulgarien


ORIGINAL: