Anzahl der Etagen
4
Etage
3
Aufzug
ja
Zimmer
3
Schlafzimmer
2
Badezimmer
1
Balkone (Terrassen)
2

Gesamtfläche
106.12 m²
Wohnfläche
90.05 m²
Gemeinschaftsräume
16.07 m²
Zustand
In Bauphase
Geplante Fertigstellung
Dezember 2027

Preis
171 000 €
1 611 €/m²
Ohne Wartungsgebühr
Anfrage für mehr Information oder Besichtigung
Infopaket
Entfernung
Letzte Aktualisierung
06.02.2026 t.
Entfernung zu
- Meer: 500m
- Flughafen Burgas (BOJ): 44km
Bau
- Ziegelwerk
Administrative Information zum Angebot
GASVERSORGUNG, ELEKTRIZITÄT
- Strom
WASSERVERSORGUNG
- Wasserversorgung
KANALISATION
- Hauptdrainage
SANITÄR- UND HILFSANLAGEN
- Balkon
DÄMMUNG UND INNENAUSBAU
- Kunststofffenster
- Panzerztür
- Spachteln und Estrich
Der Text wurde ins Deutsche mithilfe einer automatischen Software übersetzt und es ist möglich, dass er Ungenauigkeiten enthält. Sie können den Text in der originalen Sprache oder seine Übersetzung in andere Sprachen lesen:
Wir bieten eine Zweizimmerwohnung mit eigenem Garten in einem neuen, attraktiven Gebäude in exzellenter Lage im Herzen des neuen Stadtteils Sozopol - "Misarya" zum Verkauf an. Nur 500 Meter vom Strand "Harmani" entfernt und in unmittelbarer Nähe zum Stadion, dem zukünftigen Krankenhaus, einer Schule, Geschäften, Restaurants und weiteren Annehmlichkeiten.
Im Aufbau. Voraussichtlicher Abschluss: Act 16 – Dezember 2027.
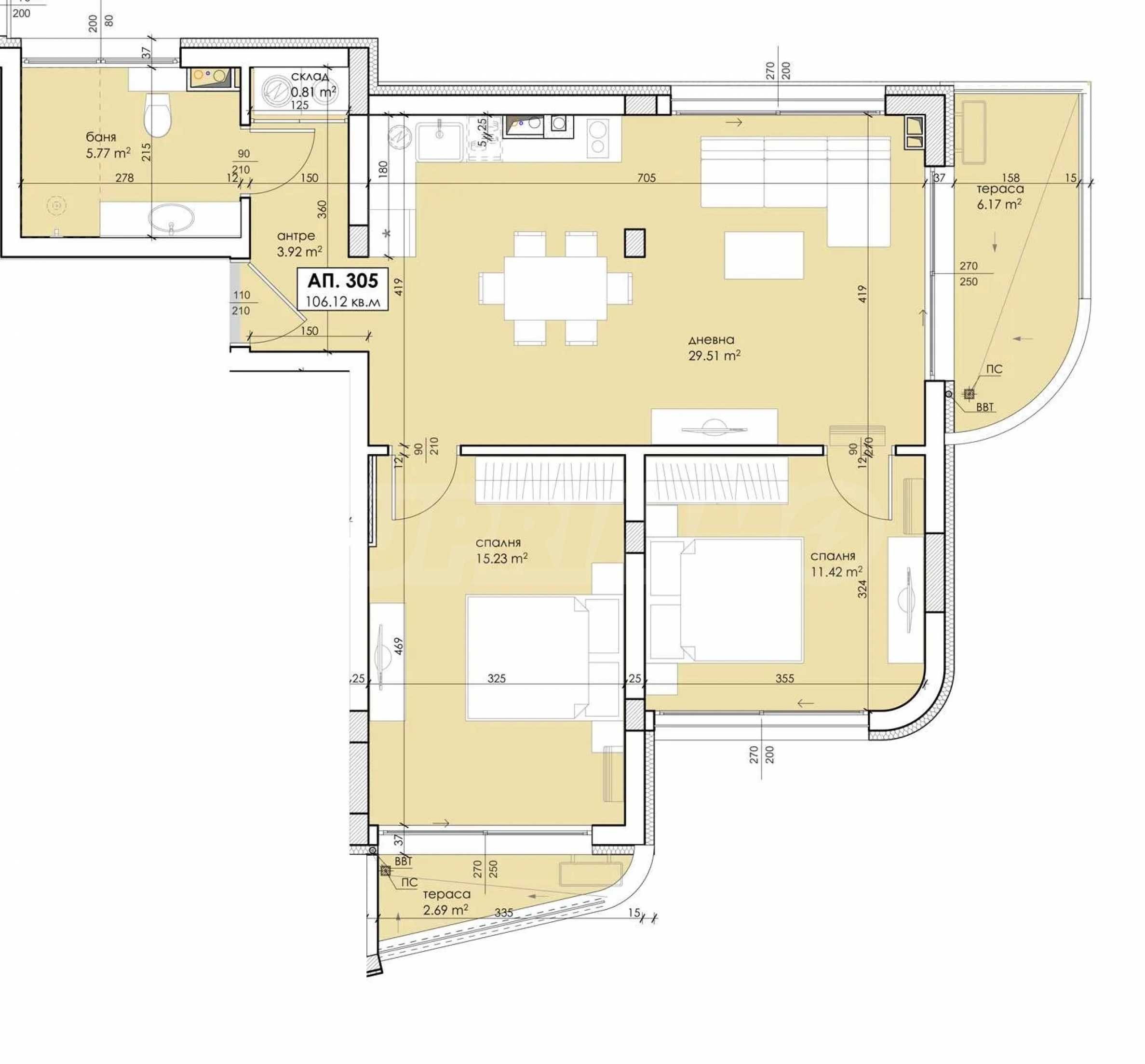
Die Immobilie befindet sich im dritten Stock und bietet eine Gesamtfläche von 106,12 m² mit Ost-/Nord-/Südausrichtung.
Verteilung:
• Eingangshalle/Eingangskorridor;
• Wohnzimmer mit Küche;
• zwei Schlafzimmer;
• Badezimmer mit Toilette;
• zwei Terrassen.
Die Wohnung wird gemäß dem bulgarischen Zivilgesetzbuch in folgendem Ausbaugrad vermietet:
• PVC-Türen – SALAMANDER 76;
• Fensterbänke aus Naturstein;
• einbruchsichere Wohnungseingangstüren;
• Wände und Decken: Kalkzementputz mit Eckprofilen;
• Fußböden: Zementestrich;
• Balkon mit Fassadenputz und installierten Beleuchtungskörpern;
• Abdichtung von gasbefeuerten Bitumen-3-mm-Venus- und Granitfliesen;
• Geländer – gemäß dem Projekt.
Es besteht die Möglichkeit einer schlüsselfertigen Fertigstellung sowie einer Möblierung gegen Aufpreis.
Die Wohnung eignet sich sowohl für ganzjähriges Wohnen als auch für Urlaubszwecke.
Über das Gebäude
Das Gebäude erstreckt sich über vier Etagen und besticht durch seine attraktive Architektur. Es bietet Zwei- und Drei-Zimmer-Wohnungen sowie 18 ober- und unterirdische Parkplätze. Die Zufahrt zur Tiefgarage erfolgt über eine Rampe, die durch den Hof und die Straße führt.
Technische Merkmale:
• Treppenhäuser und Gemeinschaftsbereiche: Granitfliesen oder Naturstein;
• Wände und Decken: Gips und Latex;
• Geländer – gemäß dem Projekt;
• installierte hydraulische Hebebühnen;
• Dachabdichtung mit gasbetriebenem Bitumen 3mm Venus;
• Wärmedämmung – XPS 10 cm.
• Zementmörtel;
• Boden der Parkplätze und der Garage - polierter Beton;
• Fassade Außenwände: Ziegel 25 cm – Wienerberger Thermo;
• Wärmedämmung von Ziegelwänden mit EPS 10cm – Baumit;
• Fassadennetz mit Klebstoff verputzt – Baumit;
• Strukturpolymerputz – Baumit;
• Wärmedämmung auf Betonoberflächen – XPS 10 cm;
• Sanitärinstallation - Polypropylen-Wasserrohr auf einem "Stopfen";
• Hochstrom-Elektroinstallation für Beleuchtung und Steckdosen errichtet;
• installierte Stromzähler, Wohnungsverteilerkasten;
• installierte Schalter und Steckdosen;
• Beleuchtungskörper auf den Balkonen installiert;
• Installation von Türklingel und Gegensprechanlage;
• interne Installationen für Internet und Fernsehen.
Wir freuen uns auf Ihre Anfrage.
Wenn Sie eine Immobilie besichtigen möchten, die Sie interessiert, oder eines unserer Büros besuchen möchten, kontaktieren Sie uns bitte. Um einen Termin für eine Besichtigung oder ein Treffen zu vereinbaren, rufen Sie uns bitte unter der in der Anzeige angegebenen Telefonnummer an oder senden Sie uns eine Anfrage per E-Mail. Unser Berater unterstützt Sie gerne mit allen notwendigen Informationen und findet einen passenden Termin für Sie.
Sind Sie auf der Suche nach der passenden Immobilie für Sie?
Zögern Sie nicht, uns zu kontaktieren und uns Ihre Wünsche und Vorlieben mitzuteilen. Unser Team führt eine gründliche Marktanalyse durch, um Ihnen Immobilien anzubieten, die genau Ihren Kriterien entsprechen. Wir verfügen über ein außergewöhnliches Portfolio an hochwertigen und exklusiven Häusern, die nur unseren Kunden zur Verfügung stehen. Um als Erster Informationen darüber zu erhalten, kontaktieren Sie uns.
Zusätzliche Dienstleistungen
Als geschätzter Kunde unseres Unternehmens genießen Sie den Vorteil, die Dienste unseres erfahrenen Rechtsteams kostenfrei in Anspruch zu nehmen. Darüber hinaus bieten wir Ihnen umfassende Lösungen, darunter Gebäudeversicherungen, kostenlose Finanzberatung sowie attraktive Finanzierungskonditionen. Unser Leistungsspektrum umfasst auch die Bereiche Wiederverkauf, Vermietung und Immobilienverwaltung. Hochwertige Renovierungen und Einrichtungsarbeiten vermitteln wir Ihnen über spezialisierte Unternehmen unserer Unternehmensgruppe, mit denen wir seit Langem zusammenarbeiten.
Besichtigungen
Wir können eine Besichtigung der Immobilie zu einer für Sie passenden Zeit vereinbaren. Bitte kontaktieren Sie den für dieses Angebot zuständigen Makler und teilen Sie ihm die von Ihnen gewünschte Uhrzeit mit.
Reservierung der Immobilie
Gegen eine nicht erstattete Anzahlung in Höhe von 2.000 Euro wird die Immobilie reserviert. Weitere Besichtigungen mit anderen Käufern finden nicht statt und Makler beginnt mit der Vorbereitung der Dokumente für den Abschluss des endgültigen Vertrags für Eigentumsübertragung. Bitte kontaktieren Sie den zuständigen Makler für mehr Information über den Kauf einer Immobilie und Zahlungsarten.
Zusatzleistungen und Kundendienst
Wir sind ein seriöses Unternehmen und werden nicht nur während des Kaufs, sondern auch danach bei Ihnen sein und Ihnen auf Ihren Wunsch zusätzliche Dienstleistungen anbieten, um die neu gekaufte Immobilie vollständig und nahtlos zu nutzen. Die Dienstleistungen, die wir anbieten können, umfassen die Erlangung einer Hypothekengenehmigung, eine Versicherung für bewegliche und unbewegliche Sachen, eine Lebensversicherung, eine Kranken- und Autoversicherung, Bau- und Reparaturaktivitäten, Möbel, Rechts- und Buchhaltungsdienstleistungen usw.
Bei uns können Sie nicht nur eine Immobilie mieten, sondern auch eine Reihe von Zusatzleistungen in Anspruch nehmen. Wir können Versicherungen für bewegliches und unbewegliches Vermögen, Lebensversicherungen, Kranken- und Kfz-Versicherungen, Bau- und Reparaturarbeiten, Möbel, Rechts- und Buchhaltungsdienstleistungen usw. anbieten.
Im Aufbau. Voraussichtlicher Abschluss: Act 16 – Dezember 2027.
Die Immobilie befindet sich im dritten Stock und bietet eine Gesamtfläche von 106,12 m² mit Ost-/Nord-/Südausrichtung.
Verteilung:
• Eingangshalle/Eingangskorridor;
• Wohnzimmer mit Küche;
• zwei Schlafzimmer;
• Badezimmer mit Toilette;
• zwei Terrassen.
Die Wohnung wird gemäß dem bulgarischen Zivilgesetzbuch in folgendem Ausbaugrad vermietet:
• PVC-Türen – SALAMANDER 76;
• Fensterbänke aus Naturstein;
• einbruchsichere Wohnungseingangstüren;
• Wände und Decken: Kalkzementputz mit Eckprofilen;
• Fußböden: Zementestrich;
• Balkon mit Fassadenputz und installierten Beleuchtungskörpern;
• Abdichtung von gasbefeuerten Bitumen-3-mm-Venus- und Granitfliesen;
• Geländer – gemäß dem Projekt.
Es besteht die Möglichkeit einer schlüsselfertigen Fertigstellung sowie einer Möblierung gegen Aufpreis.
Die Wohnung eignet sich sowohl für ganzjähriges Wohnen als auch für Urlaubszwecke.
Über das Gebäude
Das Gebäude erstreckt sich über vier Etagen und besticht durch seine attraktive Architektur. Es bietet Zwei- und Drei-Zimmer-Wohnungen sowie 18 ober- und unterirdische Parkplätze. Die Zufahrt zur Tiefgarage erfolgt über eine Rampe, die durch den Hof und die Straße führt.
Technische Merkmale:
• Treppenhäuser und Gemeinschaftsbereiche: Granitfliesen oder Naturstein;
• Wände und Decken: Gips und Latex;
• Geländer – gemäß dem Projekt;
• installierte hydraulische Hebebühnen;
• Dachabdichtung mit gasbetriebenem Bitumen 3mm Venus;
• Wärmedämmung – XPS 10 cm.
• Zementmörtel;
• Boden der Parkplätze und der Garage - polierter Beton;
• Fassade Außenwände: Ziegel 25 cm – Wienerberger Thermo;
• Wärmedämmung von Ziegelwänden mit EPS 10cm – Baumit;
• Fassadennetz mit Klebstoff verputzt – Baumit;
• Strukturpolymerputz – Baumit;
• Wärmedämmung auf Betonoberflächen – XPS 10 cm;
• Sanitärinstallation - Polypropylen-Wasserrohr auf einem "Stopfen";
• Hochstrom-Elektroinstallation für Beleuchtung und Steckdosen errichtet;
• installierte Stromzähler, Wohnungsverteilerkasten;
• installierte Schalter und Steckdosen;
• Beleuchtungskörper auf den Balkonen installiert;
• Installation von Türklingel und Gegensprechanlage;
• interne Installationen für Internet und Fernsehen.
Wir freuen uns auf Ihre Anfrage.
Wenn Sie eine Immobilie besichtigen möchten, die Sie interessiert, oder eines unserer Büros besuchen möchten, kontaktieren Sie uns bitte. Um einen Termin für eine Besichtigung oder ein Treffen zu vereinbaren, rufen Sie uns bitte unter der in der Anzeige angegebenen Telefonnummer an oder senden Sie uns eine Anfrage per E-Mail. Unser Berater unterstützt Sie gerne mit allen notwendigen Informationen und findet einen passenden Termin für Sie.
Sind Sie auf der Suche nach der passenden Immobilie für Sie?
Zögern Sie nicht, uns zu kontaktieren und uns Ihre Wünsche und Vorlieben mitzuteilen. Unser Team führt eine gründliche Marktanalyse durch, um Ihnen Immobilien anzubieten, die genau Ihren Kriterien entsprechen. Wir verfügen über ein außergewöhnliches Portfolio an hochwertigen und exklusiven Häusern, die nur unseren Kunden zur Verfügung stehen. Um als Erster Informationen darüber zu erhalten, kontaktieren Sie uns.
Zusätzliche Dienstleistungen
Als geschätzter Kunde unseres Unternehmens genießen Sie den Vorteil, die Dienste unseres erfahrenen Rechtsteams kostenfrei in Anspruch zu nehmen. Darüber hinaus bieten wir Ihnen umfassende Lösungen, darunter Gebäudeversicherungen, kostenlose Finanzberatung sowie attraktive Finanzierungskonditionen. Unser Leistungsspektrum umfasst auch die Bereiche Wiederverkauf, Vermietung und Immobilienverwaltung. Hochwertige Renovierungen und Einrichtungsarbeiten vermitteln wir Ihnen über spezialisierte Unternehmen unserer Unternehmensgruppe, mit denen wir seit Langem zusammenarbeiten.
Besichtigungen
Wir können eine Besichtigung der Immobilie zu einer für Sie passenden Zeit vereinbaren. Bitte kontaktieren Sie den für dieses Angebot zuständigen Makler und teilen Sie ihm die von Ihnen gewünschte Uhrzeit mit.
Reservierung der Immobilie
Gegen eine nicht erstattete Anzahlung in Höhe von 2.000 Euro wird die Immobilie reserviert. Weitere Besichtigungen mit anderen Käufern finden nicht statt und Makler beginnt mit der Vorbereitung der Dokumente für den Abschluss des endgültigen Vertrags für Eigentumsübertragung. Bitte kontaktieren Sie den zuständigen Makler für mehr Information über den Kauf einer Immobilie und Zahlungsarten.
Zusatzleistungen und Kundendienst
Wir sind ein seriöses Unternehmen und werden nicht nur während des Kaufs, sondern auch danach bei Ihnen sein und Ihnen auf Ihren Wunsch zusätzliche Dienstleistungen anbieten, um die neu gekaufte Immobilie vollständig und nahtlos zu nutzen. Die Dienstleistungen, die wir anbieten können, umfassen die Erlangung einer Hypothekengenehmigung, eine Versicherung für bewegliche und unbewegliche Sachen, eine Lebensversicherung, eine Kranken- und Autoversicherung, Bau- und Reparaturaktivitäten, Möbel, Rechts- und Buchhaltungsdienstleistungen usw.
Bei uns können Sie nicht nur eine Immobilie mieten, sondern auch eine Reihe von Zusatzleistungen in Anspruch nehmen. Wir können Versicherungen für bewegliches und unbewegliches Vermögen, Lebensversicherungen, Kranken- und Kfz-Versicherungen, Bau- und Reparaturarbeiten, Möbel, Rechts- und Buchhaltungsdienstleistungen usw. anbieten.
Lesen Sie den Text in anderen Sprachen (automatische Übersetzung)
Standort (ungefähr)
Auf der Karte ist der ungefähre Standort der Immobilie/des Wohnkomplexes mit roter Markierung angezeigt.
Unsere Top-Angebote über zum verkauf im Sozopol, Bulgarien
Immobilien nach Typ, Sozopol
- 2-Raum-Apartments im Sozopol
- 3-Raum-Apartments im Sozopol
- Häuser im Sozopol
- 1-Raum-Apartments im Sozopol
- Apartments (verschiedene Typen) im Sozopol
- Investitionsgrundstücke im Sozopol
- Regulierte Grundstücke im Sozopol
- Mehr-Zimmer-Apartments im Sozopol
- Doppelhaus im Sozopol
- Reihenhäuser im Sozopol
Beliebste Suchaufträge
- Landhäuser in Bulgarien
- Immobilien zur Miete in Bulgarien
- Immobilien zum Kauf in Bulgarien
- Häuser zum Kauf in Bulgarien
- Immobilien zur Miete im Varna
- Immobilien in Bulgarien
- Immobilien zum Kauf im Varna
- Häuser in Bulgarien
- Immobilien im Varna
- Immobilien zur Miete im Burgas


ORIGINAL: