Klasse des Gebäudes/Komplexes
Hoher Standard
Anzahl der Etagen
4
Etage
1
Aufzug
ja
Zimmer
3
Schlafzimmer
2
Badezimmer
2

Gesamtfläche
114.32 m²
Wohnfläche
98.20 m²
Gemeinschaftsräume
16.12 m²
Garten
136.20 m²
Zustand
In Bauphase
Geplante Fertigstellung
August 2027

Preis
285 554 €
2 498 €/m²
Provisionsfrei für den Käufer
Anfrage für mehr Information oder Besichtigung
Infopaket
Zustand
BDS (auf Grundierung und Spachtelmasse)
Ausstattung
Heizung
Elektroheizung / Fußbodenheizung
Entfernung
Letzte Aktualisierung
12.12.2025 t.
Entfernung zu
- Stadtzentrum: 15km
- Flughafen Sofia (SOF): 10km
Heizung
- Elektroheizung
- Fußbodenheizung
Administrative Information zum Angebot
GASVERSORGUNG, ELEKTRIZITÄT
- Strom
WASSERVERSORGUNG
- Wasserversorgung
FASSADE
- Außendämmung
SANITÄR- UND HILFSANLAGEN
- Badezimmer mit Toilette
- Veranda
DÄMMUNG UND INNENAUSBAU
- Aluminium-Fenster und Türen
- Dreifachverlasung
- Spachteln und Estrich
EXTRAS IM GEBÄUDE
- Aufzug
- Geschlossener Komplex
- Luxuriöse Gemeinschaftsräume
HOF UND GARTEN
- Garten
Der Text wurde ins Deutsche mithilfe einer automatischen Software übersetzt und es ist möglich, dass er Ungenauigkeiten enthält. Sie können den Text in der originalen Sprache oder seine Übersetzung in andere Sprachen lesen:
Wir präsentieren eine komfortable Zweizimmerwohnung mit eigenem Garten zum Verkauf in einem neuen, luxuriösen IT-Gebäude am See, inmitten der Natur im Stadtteil „Pancharevo“.
Die Lage ist malerisch und verkehrsgünstig, nur wenige Minuten von Sofia entfernt und in unmittelbarer Nähe des Pancharevo-Sees, im Bereich der Open-Air-Oper und des Kajakgebiets. Das Gebiet bietet eine hervorragende Infrastruktur – ein Park mit Spielplätzen, ein Kindergarten und eine Schule sind fußläufig erreichbar. Der Zugang zur „Samokovsko Shose“ ist schnell und einfach, und die Haltestelle des öffentlichen Nahverkehrs und der Lidl-Markt sind nur wenige Autominuten entfernt.
OHNE PROVISION.
Baubeginn - August 2025
Umsetzungszeitraum: 2 Jahre.
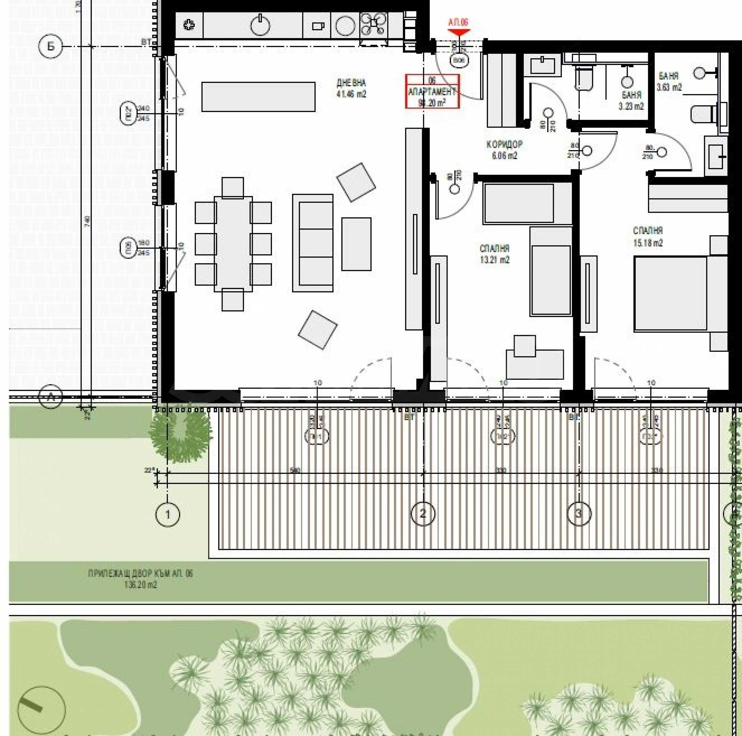
Die Wohnung Nr. 6 befindet sich im 1. Stock, ist nach Osten ausgerichtet und verfügt über eine Gesamtfläche von 114,32 m² und einen eigenen Hof von 136,20 m².
Verteilung:
• Eingangshalle/Flur;
• zwei Schlafzimmer;
• zwei Badezimmer mit Toiletten;
• Wohnzimmer mit Küche und Esszimmer;
• Innenhof mit Zugang von allen Zimmern.
Hochwertige Materialien
Das mit Liebe zum Detail und der Umwelt entworfene IT-Gebäude am See wird nach höchsten Standards gebaut: Aluminium-Tischlerei mit Dreifachverglasung, hochwertige Wärmedämmung, eine Fassade mit natürlichen ARTEFINO-Holzelementen, Fußbodenheizung und ein intelligentes Videoüberwachungssystem mit Funktionen zur Erkennung von Brand-, Überschwemmungs- oder Gefahrenrisiken für die Bewohner.
Wohnungen
Bei den Wohnungen handelt es sich um Dreizimmerwohnungen und eine Vierzimmerwohnung. Sie werden in einem Fertigstellungsgrad gemäß BDS angeboten. Die Wohnungen bieten Blick auf den See oder einen malerischen Kiefernwald hinter dem Gebäude, da der Standort vollständig von Grünflächen und einer bereits bebauten Umgebung mit Wohnhäusern umgeben ist – ohne das Risiko zukünftiger Bauarbeiten in der Nähe.
Das Gebäude bietet Tiefgaragenstellplätze und Garagen zum Kauf an.
Architekturkonzept - lebe es... liebe es... See-IT
Das Gebäude ist eine zeitgenössische architektonische Geste des Respekts vor der Natur – eine Form, die nicht dominiert, sondern kontemplativ ist. Das Projekt ist das Werk des etablierten und preisgekrönten Architekturbüros STUDIO CREATIVE :
„Das Lake IT-Gebäude ist eine Erweiterung der Natur, es ist Architektur in einem Zustand der Kontemplation. Inmitten der sanften Stille der verschiedenen Baumarten, die eine Waldatmosphäre schaffen, erhebt sich das Lake IT-Gebäude nicht als Fremdkörper, sondern als natürliche Erweiterung der Landschaft, sauber, rhythmisch und in tiefem Dialog mit der Umwelt. Dies ist nicht nur Architektur, sondern eine Geste des Respekts für den Ort, an dem es steht.
Die Form ist präzise, mathematisch und klar, strahlt aber dennoch Gemütlichkeit aus. Der geradlinige Baukörper mit gleichmäßigen und langen Horizontalen liegt ruhig auf dem Gebäude, ohne es zu stören. Die dunklen Vertikalen der Fassade teilen nicht, sondern pulsieren im Einklang mit den umgebenden Bäumen und erzeugen so ein Gefühl architektonischer Schatten, die das Licht einfangen und auf ihre eigene Weise brechen.
Die großen Glasöffnungen sind keine Fenster, sondern Portale zur Kontemplation. lake IT ist ein absoluter Partner der Landschaft und wird zur Kulisse. Innen und Außen sind in ständiger Bewegung, gehen ineinander über, verändern sich mit Zeit, Licht und Jahreszeit. Das Gebäude sucht nicht nach Aufmerksamkeit, es verkündet seine Präsenz nicht, es beobachtet, reflektiert, tritt in Dialog mit der Natur und lässt sich zum Spiegel des Ortes machen. Dies ist Architektur, die nicht diktiert, sondern zuhört. Nachts breitet sich das Licht wie ein Hauch aus, gedämpft, gleichmäßig, ohne übermäßige Helligkeit, stört die Dunkelheit nicht, sondern akzeptiert sie und enthüllt diskret ihre Details.
„Dies ist nicht nur ein Zuhause. Dies ist ein Zustand des Friedens, der Ausgeglichenheit, einer Architektur, die weiß, dass der wahre Wert nicht in dem liegt, was sie zeigt, sondern in dem, was sie spürbar macht.“
Zahlungssysteme
Standardschema:
30 % bei Vertragsabschluss (Anzahlung);
30 % für Gesetz 14;
30 % für Gesetz 15;
10 % für Akt 16.
Kreditschema:
10 % bei Vertragsabschluss;
60 % für Akt 14;
20 % für Gesetz 15;
10 % für Akt 16.
„Investieren“-Programm (-2 % Rabatt):
50 % bei Vertragsabschluss;
20 % für Gesetz 14;
20 % für Gesetz 15;
10 % für Akt 16.
„Super Invest“-Programm (-3 % Rabatt):
80 % bei Vertragsabschluss;
20 % für Akt 16.
"Frieden"-Programm (+8 % auf den Preis):
20 % bei Vertragsabschluss;
80 % bei Akt 16.
Wir freuen uns auf Ihre Anfrage.
Wenn Sie eine Besichtigung einer Immobilie Ihrer Wahl oder einen Besuch in einem unserer Büros vereinbaren möchten, kontaktieren Sie uns bitte. Um einen Termin für ein Treffen oder eine Besichtigung zu vereinbaren, rufen Sie die in der Anzeige angegebene Telefonnummer an oder senden Sie eine Anfrage per E-Mail. Unser Berater berät Sie gerne bei allen notwendigen Details und vereinbart einen passenden Termin für Sie.
Sie suchen die passende Immobilie für sich?
Zögern Sie nicht, uns zu kontaktieren und uns Ihre Wünsche und Bedürfnisse mitzuteilen. Unser Team führt eine gründliche Marktforschung durch, um Ihnen Immobilien anzubieten, die genau Ihren Kriterien entsprechen. Wir verfügen über ein außergewöhnliches Portfolio an hochwertigen und exklusiven Immobilien, die nur unseren Kunden zur Verfügung stehen. Um als Erster Informationen darüber zu erhalten, kontaktieren Sie uns.
Zusätzliche Dienstleistungen
Als geschätzter Kunde unseres Unternehmens genießen Sie die Vorteile unseres erfahrenen Rechtsanwaltsteams völlig kostenlos. Darüber hinaus bieten wir umfassende Lösungen, darunter Gebäudeversicherungen, kostenlose Finanzberatung sowie günstige Finanzierungskonditionen. Unsere Dienstleistungen umfassen auch den Wiederverkauf, die Vermietung und die Hausverwaltung. Hochwertige Renovierungen und Möblierungen führen wir durch spezialisierte Unternehmen unserer Unternehmensgruppe durch, die unsere langjährigen professionellen Partner sind.
Besichtigungen
Wir können eine Besichtigung der Immobilie zu einer für Sie passenden Zeit vereinbaren. Bitte kontaktieren Sie den für dieses Angebot zuständigen Makler und teilen Sie ihm die von Ihnen gewünschte Uhrzeit mit.
Reservierung der Immobilie
Gegen eine nicht erstattete Anzahlung in Höhe von 2.000 Euro wird die Immobilie reserviert. Weitere Besichtigungen mit anderen Käufern finden nicht statt und Makler beginnt mit der Vorbereitung der Dokumente für den Abschluss des endgültigen Vertrags für Eigentumsübertragung. Bitte kontaktieren Sie den zuständigen Makler für mehr Information über den Kauf einer Immobilie und Zahlungsarten.
Zusatzleistungen und Kundendienst
Wir sind ein seriöses Unternehmen und werden nicht nur während des Kaufs, sondern auch danach bei Ihnen sein und Ihnen auf Ihren Wunsch zusätzliche Dienstleistungen anbieten, um die neu gekaufte Immobilie vollständig und nahtlos zu nutzen. Die Dienstleistungen, die wir anbieten können, umfassen die Erlangung einer Hypothekengenehmigung, eine Versicherung für bewegliche und unbewegliche Sachen, eine Lebensversicherung, eine Kranken- und Autoversicherung, Bau- und Reparaturaktivitäten, Möbel, Rechts- und Buchhaltungsdienstleistungen usw.
Bei uns können Sie nicht nur eine Immobilie mieten, sondern auch eine Reihe von Zusatzleistungen in Anspruch nehmen. Wir können Versicherungen für bewegliches und unbewegliches Vermögen, Lebensversicherungen, Kranken- und Kfz-Versicherungen, Bau- und Reparaturarbeiten, Möbel, Rechts- und Buchhaltungsdienstleistungen usw. anbieten.
Die Lage ist malerisch und verkehrsgünstig, nur wenige Minuten von Sofia entfernt und in unmittelbarer Nähe des Pancharevo-Sees, im Bereich der Open-Air-Oper und des Kajakgebiets. Das Gebiet bietet eine hervorragende Infrastruktur – ein Park mit Spielplätzen, ein Kindergarten und eine Schule sind fußläufig erreichbar. Der Zugang zur „Samokovsko Shose“ ist schnell und einfach, und die Haltestelle des öffentlichen Nahverkehrs und der Lidl-Markt sind nur wenige Autominuten entfernt.
OHNE PROVISION.
Baubeginn - August 2025
Umsetzungszeitraum: 2 Jahre.
Die Wohnung Nr. 6 befindet sich im 1. Stock, ist nach Osten ausgerichtet und verfügt über eine Gesamtfläche von 114,32 m² und einen eigenen Hof von 136,20 m².
Verteilung:
• Eingangshalle/Flur;
• zwei Schlafzimmer;
• zwei Badezimmer mit Toiletten;
• Wohnzimmer mit Küche und Esszimmer;
• Innenhof mit Zugang von allen Zimmern.
Hochwertige Materialien
Das mit Liebe zum Detail und der Umwelt entworfene IT-Gebäude am See wird nach höchsten Standards gebaut: Aluminium-Tischlerei mit Dreifachverglasung, hochwertige Wärmedämmung, eine Fassade mit natürlichen ARTEFINO-Holzelementen, Fußbodenheizung und ein intelligentes Videoüberwachungssystem mit Funktionen zur Erkennung von Brand-, Überschwemmungs- oder Gefahrenrisiken für die Bewohner.
Wohnungen
Bei den Wohnungen handelt es sich um Dreizimmerwohnungen und eine Vierzimmerwohnung. Sie werden in einem Fertigstellungsgrad gemäß BDS angeboten. Die Wohnungen bieten Blick auf den See oder einen malerischen Kiefernwald hinter dem Gebäude, da der Standort vollständig von Grünflächen und einer bereits bebauten Umgebung mit Wohnhäusern umgeben ist – ohne das Risiko zukünftiger Bauarbeiten in der Nähe.
Das Gebäude bietet Tiefgaragenstellplätze und Garagen zum Kauf an.
Architekturkonzept - lebe es... liebe es... See-IT
Das Gebäude ist eine zeitgenössische architektonische Geste des Respekts vor der Natur – eine Form, die nicht dominiert, sondern kontemplativ ist. Das Projekt ist das Werk des etablierten und preisgekrönten Architekturbüros STUDIO CREATIVE :
„Das Lake IT-Gebäude ist eine Erweiterung der Natur, es ist Architektur in einem Zustand der Kontemplation. Inmitten der sanften Stille der verschiedenen Baumarten, die eine Waldatmosphäre schaffen, erhebt sich das Lake IT-Gebäude nicht als Fremdkörper, sondern als natürliche Erweiterung der Landschaft, sauber, rhythmisch und in tiefem Dialog mit der Umwelt. Dies ist nicht nur Architektur, sondern eine Geste des Respekts für den Ort, an dem es steht.
Die Form ist präzise, mathematisch und klar, strahlt aber dennoch Gemütlichkeit aus. Der geradlinige Baukörper mit gleichmäßigen und langen Horizontalen liegt ruhig auf dem Gebäude, ohne es zu stören. Die dunklen Vertikalen der Fassade teilen nicht, sondern pulsieren im Einklang mit den umgebenden Bäumen und erzeugen so ein Gefühl architektonischer Schatten, die das Licht einfangen und auf ihre eigene Weise brechen.
Die großen Glasöffnungen sind keine Fenster, sondern Portale zur Kontemplation. lake IT ist ein absoluter Partner der Landschaft und wird zur Kulisse. Innen und Außen sind in ständiger Bewegung, gehen ineinander über, verändern sich mit Zeit, Licht und Jahreszeit. Das Gebäude sucht nicht nach Aufmerksamkeit, es verkündet seine Präsenz nicht, es beobachtet, reflektiert, tritt in Dialog mit der Natur und lässt sich zum Spiegel des Ortes machen. Dies ist Architektur, die nicht diktiert, sondern zuhört. Nachts breitet sich das Licht wie ein Hauch aus, gedämpft, gleichmäßig, ohne übermäßige Helligkeit, stört die Dunkelheit nicht, sondern akzeptiert sie und enthüllt diskret ihre Details.
„Dies ist nicht nur ein Zuhause. Dies ist ein Zustand des Friedens, der Ausgeglichenheit, einer Architektur, die weiß, dass der wahre Wert nicht in dem liegt, was sie zeigt, sondern in dem, was sie spürbar macht.“
Zahlungssysteme
Standardschema:
30 % bei Vertragsabschluss (Anzahlung);
30 % für Gesetz 14;
30 % für Gesetz 15;
10 % für Akt 16.
Kreditschema:
10 % bei Vertragsabschluss;
60 % für Akt 14;
20 % für Gesetz 15;
10 % für Akt 16.
„Investieren“-Programm (-2 % Rabatt):
50 % bei Vertragsabschluss;
20 % für Gesetz 14;
20 % für Gesetz 15;
10 % für Akt 16.
„Super Invest“-Programm (-3 % Rabatt):
80 % bei Vertragsabschluss;
20 % für Akt 16.
"Frieden"-Programm (+8 % auf den Preis):
20 % bei Vertragsabschluss;
80 % bei Akt 16.
Wir freuen uns auf Ihre Anfrage.
Wenn Sie eine Besichtigung einer Immobilie Ihrer Wahl oder einen Besuch in einem unserer Büros vereinbaren möchten, kontaktieren Sie uns bitte. Um einen Termin für ein Treffen oder eine Besichtigung zu vereinbaren, rufen Sie die in der Anzeige angegebene Telefonnummer an oder senden Sie eine Anfrage per E-Mail. Unser Berater berät Sie gerne bei allen notwendigen Details und vereinbart einen passenden Termin für Sie.
Sie suchen die passende Immobilie für sich?
Zögern Sie nicht, uns zu kontaktieren und uns Ihre Wünsche und Bedürfnisse mitzuteilen. Unser Team führt eine gründliche Marktforschung durch, um Ihnen Immobilien anzubieten, die genau Ihren Kriterien entsprechen. Wir verfügen über ein außergewöhnliches Portfolio an hochwertigen und exklusiven Immobilien, die nur unseren Kunden zur Verfügung stehen. Um als Erster Informationen darüber zu erhalten, kontaktieren Sie uns.
Zusätzliche Dienstleistungen
Als geschätzter Kunde unseres Unternehmens genießen Sie die Vorteile unseres erfahrenen Rechtsanwaltsteams völlig kostenlos. Darüber hinaus bieten wir umfassende Lösungen, darunter Gebäudeversicherungen, kostenlose Finanzberatung sowie günstige Finanzierungskonditionen. Unsere Dienstleistungen umfassen auch den Wiederverkauf, die Vermietung und die Hausverwaltung. Hochwertige Renovierungen und Möblierungen führen wir durch spezialisierte Unternehmen unserer Unternehmensgruppe durch, die unsere langjährigen professionellen Partner sind.
Besichtigungen
Wir können eine Besichtigung der Immobilie zu einer für Sie passenden Zeit vereinbaren. Bitte kontaktieren Sie den für dieses Angebot zuständigen Makler und teilen Sie ihm die von Ihnen gewünschte Uhrzeit mit.
Reservierung der Immobilie
Gegen eine nicht erstattete Anzahlung in Höhe von 2.000 Euro wird die Immobilie reserviert. Weitere Besichtigungen mit anderen Käufern finden nicht statt und Makler beginnt mit der Vorbereitung der Dokumente für den Abschluss des endgültigen Vertrags für Eigentumsübertragung. Bitte kontaktieren Sie den zuständigen Makler für mehr Information über den Kauf einer Immobilie und Zahlungsarten.
Zusatzleistungen und Kundendienst
Wir sind ein seriöses Unternehmen und werden nicht nur während des Kaufs, sondern auch danach bei Ihnen sein und Ihnen auf Ihren Wunsch zusätzliche Dienstleistungen anbieten, um die neu gekaufte Immobilie vollständig und nahtlos zu nutzen. Die Dienstleistungen, die wir anbieten können, umfassen die Erlangung einer Hypothekengenehmigung, eine Versicherung für bewegliche und unbewegliche Sachen, eine Lebensversicherung, eine Kranken- und Autoversicherung, Bau- und Reparaturaktivitäten, Möbel, Rechts- und Buchhaltungsdienstleistungen usw.
Bei uns können Sie nicht nur eine Immobilie mieten, sondern auch eine Reihe von Zusatzleistungen in Anspruch nehmen. Wir können Versicherungen für bewegliches und unbewegliches Vermögen, Lebensversicherungen, Kranken- und Kfz-Versicherungen, Bau- und Reparaturarbeiten, Möbel, Rechts- und Buchhaltungsdienstleistungen usw. anbieten.
Lesen Sie den Text in anderen Sprachen (automatische Übersetzung)
Standort (ungefähr)
Auf der Karte ist der ungefähre Standort der Immobilie/des Wohnkomplexes mit roter Markierung angezeigt.
Unsere Top-Angebote über zum verkauf im Pancharevo, Bulgarien
Beliebste Suchaufträge
- Landhäuser in Bulgarien
- Immobilien zur Miete in Bulgarien
- Immobilien zum Kauf in Bulgarien
- Häuser zum Kauf in Bulgarien
- Immobilien zur Miete im Varna
- Immobilien in Bulgarien
- Immobilien zum Kauf im Varna
- Häuser in Bulgarien
- Immobilien im Varna
- Immobilien zur Miete im Burgas


ORIGINAL: