Anzahl der Etagen
4
Etage
4
Aufzug
ja
Zimmer
2
Schlafzimmer
1
Badezimmer
1
Balkone (Terrassen)
3

Gesamtfläche
136.23 m²
Zustand
In Bauphase
Geplante Fertigstellung
Februar 2027

Preis
-9% 147 000 €
134 800 €
990 €/m²
Ohne Wartungsgebühr
Provisionsfrei für den Käufer
Anfrage für mehr Information oder Besichtigung
Infopaket
Zustand
schl?sselfertig (mit Bodenbelag und lackiert)
Ausstattung
Fenster
Kunststofffenster
Entfernung
Letzte Aktualisierung
12.02.2026 t.
Entfernung zu
- Meer: 800m
- Flughafen Burgas (BOJ): 44km
Bau
- Ziegelwerk
Administrative Information zum Angebot
GASVERSORGUNG, ELEKTRIZITÄT
- Strom
WASSERVERSORGUNG
- Wasserversorgung
TYP DER GEMEINSCHAFTSRÄUME
- Granit-Fliesen
FASSADE
- Außendämmung
KANALISATION
- Hauptdrainage
SANITÄR- UND HILFSANLAGEN
- Badezimmer mit Toilette
- Balkons
DÄMMUNG UND INNENAUSBAU
- Außendämmung
- Kunststofffenster
- Spachteln und Estrich
EXTRAS IM GEBÄUDE
- Aufzug
HOF UND GARTEN
- Garten
ZUGANG ZUR IMMOBILIE UND TELEKOMMUNIKATIONEN
- Asphaltstraße
ANDERE
- Nah zu Lebensmittelgeschäften
- Wohngebäude
Der Text wurde ins Deutsche mithilfe einer automatischen Software übersetzt und es ist möglich, dass er Ungenauigkeiten enthält. Sie können den Text in der originalen Sprache oder seine Übersetzung in andere Sprachen lesen:
Wir bieten Ihnen eine geräumige 1-Zimmer-Wohnung mit Panoramaterrassen in einem modernen Gebäude mit wenigen Wohneinheiten zum Kauf an. Die Wohnung befindet sich in günstiger Lage, nur 10 Gehminuten vom Strand Harmanite entfernt, im neuen Stadtteil Sozopol. Das Gebiet entwickelt sich rasant zu einem komplett neuen Stadtviertel mit hochwertigen neuen Genossenschaftswohnungen, Villen und Einfamilienhäusern. Zukünftig wird es eine direkte Anbindung an die Umgehungsstraße nach Burgas und das geplante Krankenhaus geben. Die Gegend eignet sich ideal zum ganzjährigen Wohnen.
IM BAU.
Voraussichtlicher Act 16 – Februar 2027
Kaufen Sie provisionsfrei!
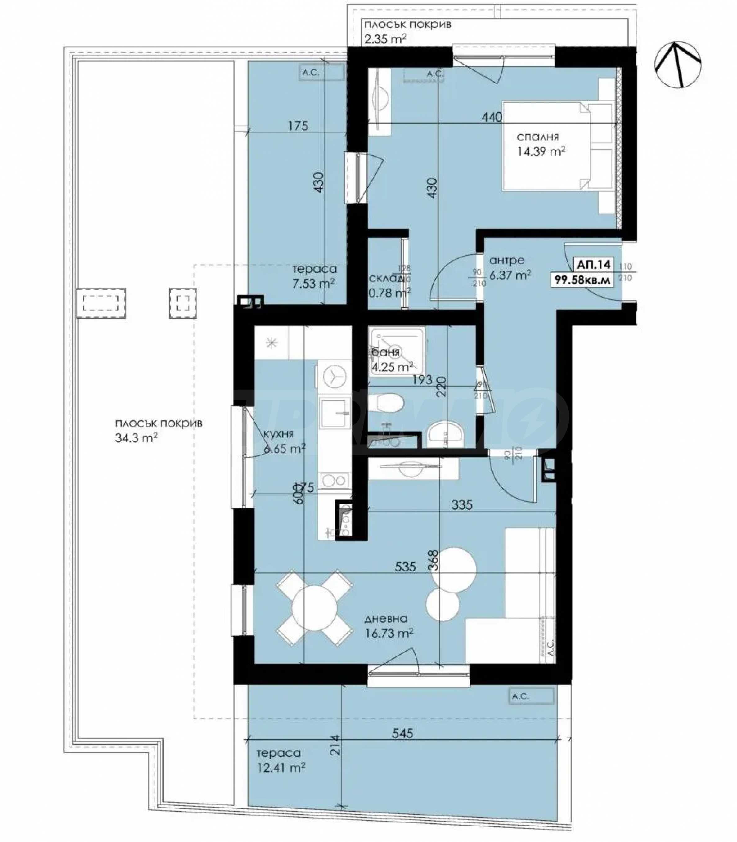
Das Objekt hat eine Gesamtfläche von 136,23 m² und befindet sich im 4. Obergeschoss mit folgender Aufteilung:
• Eingangshalle/Eingangskorridor;
• Wohnzimmer mit Küche;
• Schlafzimmer;
• Badezimmer mit Toilette;
• drei Terrassen mit Panoramablick.
Es wird als schlüsselfertiges Produkt ausgeliefert:
• gepanzerte Eingangstüren;
• Schalter, Beleuchtungskörper;
• Badezimmer: Einbauschränke, Fayence, Granitfliesen, abgehängte Decke;
• Wände - weißer Latex;
• Bodenbelag - Granitfliesen oder Laminat.
Das Gebäude erstreckt sich über 4 Etagen und bietet geräumige Studios und Ein-Zimmer-Apartments mit einer Fläche von 38,21 m² bis 136,23 m². Die Wohnungen in den oberen Etagen bieten einen Panoramablick auf die Stadt, das Meer und die grüne Umgebung.
Hochwertige Bauweise:
Es besteht auch die Möglichkeit, zusätzliche Parkplätze zu erwerben.
Wir freuen uns auf Ihre Anfrage.
Wenn Sie eine Immobilie besichtigen möchten, die Sie interessiert, oder eines unserer Büros besuchen möchten, kontaktieren Sie uns bitte. Um einen Termin für eine Besichtigung oder ein Treffen zu vereinbaren, rufen Sie uns bitte unter der in der Anzeige angegebenen Telefonnummer an oder senden Sie uns eine Anfrage per E-Mail. Unser Berater unterstützt Sie gerne mit allen notwendigen Informationen und findet einen passenden Termin für Sie.
Sind Sie auf der Suche nach der passenden Immobilie für sich?
Zögern Sie nicht, uns zu kontaktieren und uns Ihre Wünsche und Vorlieben mitzuteilen. Unser Team führt eine gründliche Marktanalyse durch, um Ihnen Immobilien anzubieten, die genau Ihren Kriterien entsprechen. Wir verfügen über ein außergewöhnliches Portfolio an hochwertigen und exklusiven Häusern, die nur unseren Kunden zur Verfügung stehen. Um als Erster Informationen darüber zu erhalten, kontaktieren Sie uns.
Zusätzliche Dienstleistungen
Als geschätzter Kunde unseres Unternehmens genießen Sie den Vorteil, die Dienste unseres erfahrenen Rechtsteams kostenfrei in Anspruch zu nehmen. Darüber hinaus bieten wir Ihnen umfassende Lösungen, darunter Gebäudeversicherungen, kostenlose Finanzberatung sowie attraktive Finanzierungskonditionen. Unser Leistungsspektrum umfasst auch die Bereiche Wiederverkauf, Vermietung und Immobilienverwaltung. Hochwertige Renovierungen und Einrichtungsarbeiten vermitteln wir Ihnen über spezialisierte Unternehmen unserer Unternehmensgruppe, mit denen wir seit Langem zusammenarbeiten.
Besichtigungen
Wir können eine Besichtigung der Immobilie zu einer für Sie passenden Zeit vereinbaren. Bitte kontaktieren Sie den für dieses Angebot zuständigen Makler und teilen Sie ihm die von Ihnen gewünschte Uhrzeit mit.
Reservierung der Immobilie
Gegen eine nicht erstattete Anzahlung in Höhe von 2.000 Euro wird die Immobilie reserviert. Weitere Besichtigungen mit anderen Käufern finden nicht statt und Makler beginnt mit der Vorbereitung der Dokumente für den Abschluss des endgültigen Vertrags für Eigentumsübertragung. Bitte kontaktieren Sie den zuständigen Makler für mehr Information über den Kauf einer Immobilie und Zahlungsarten.
Zusatzleistungen und Kundendienst
Wir sind ein seriöses Unternehmen und werden nicht nur während des Kaufs, sondern auch danach bei Ihnen sein und Ihnen auf Ihren Wunsch zusätzliche Dienstleistungen anbieten, um die neu gekaufte Immobilie vollständig und nahtlos zu nutzen. Die Dienstleistungen, die wir anbieten können, umfassen die Erlangung einer Hypothekengenehmigung, eine Versicherung für bewegliche und unbewegliche Sachen, eine Lebensversicherung, eine Kranken- und Autoversicherung, Bau- und Reparaturaktivitäten, Möbel, Rechts- und Buchhaltungsdienstleistungen usw.
Bei uns können Sie nicht nur eine Immobilie mieten, sondern auch eine Reihe von Zusatzleistungen in Anspruch nehmen. Wir können Versicherungen für bewegliches und unbewegliches Vermögen, Lebensversicherungen, Kranken- und Kfz-Versicherungen, Bau- und Reparaturarbeiten, Möbel, Rechts- und Buchhaltungsdienstleistungen usw. anbieten.
IM BAU.
Voraussichtlicher Act 16 – Februar 2027
Kaufen Sie provisionsfrei!
Das Objekt hat eine Gesamtfläche von 136,23 m² und befindet sich im 4. Obergeschoss mit folgender Aufteilung:
• Eingangshalle/Eingangskorridor;
• Wohnzimmer mit Küche;
• Schlafzimmer;
• Badezimmer mit Toilette;
• drei Terrassen mit Panoramablick.
Es wird als schlüsselfertiges Produkt ausgeliefert:
• gepanzerte Eingangstüren;
• Schalter, Beleuchtungskörper;
• Badezimmer: Einbauschränke, Fayence, Granitfliesen, abgehängte Decke;
• Wände - weißer Latex;
• Bodenbelag - Granitfliesen oder Laminat.
Das Gebäude erstreckt sich über 4 Etagen und bietet geräumige Studios und Ein-Zimmer-Apartments mit einer Fläche von 38,21 m² bis 136,23 m². Die Wohnungen in den oberen Etagen bieten einen Panoramablick auf die Stadt, das Meer und die grüne Umgebung.
Hochwertige Bauweise:
- Fassade: EPS-Wärmedämmpaket von Baumit;
- Fenster: PVC 5-Kammer;
- Terrassen: Granitfliesen für den Außenbereich. Alle Dachterrassen werden mit XPS und Abdichtung versehen. Aluminiumgeländer im Durchbruchdesign;
- Dächer: Flachdächer mit XPS, Dampfsperre, geneigtem Estrich und zwei Schichten Abdichtung;
- Gemeinschaftsbereiche: Granittreppe, Aluminiumgeländer;
- Eingangstüren;
- EL: schlüsselfertig;
- Sanitärinstallation: bis zum Stecker;
- Innenverkleidung aus Gipsputz;
- Boden: Ausgleichsestrich aus Zement.
Es besteht auch die Möglichkeit, zusätzliche Parkplätze zu erwerben.
Wir freuen uns auf Ihre Anfrage.
Wenn Sie eine Immobilie besichtigen möchten, die Sie interessiert, oder eines unserer Büros besuchen möchten, kontaktieren Sie uns bitte. Um einen Termin für eine Besichtigung oder ein Treffen zu vereinbaren, rufen Sie uns bitte unter der in der Anzeige angegebenen Telefonnummer an oder senden Sie uns eine Anfrage per E-Mail. Unser Berater unterstützt Sie gerne mit allen notwendigen Informationen und findet einen passenden Termin für Sie.
Sind Sie auf der Suche nach der passenden Immobilie für sich?
Zögern Sie nicht, uns zu kontaktieren und uns Ihre Wünsche und Vorlieben mitzuteilen. Unser Team führt eine gründliche Marktanalyse durch, um Ihnen Immobilien anzubieten, die genau Ihren Kriterien entsprechen. Wir verfügen über ein außergewöhnliches Portfolio an hochwertigen und exklusiven Häusern, die nur unseren Kunden zur Verfügung stehen. Um als Erster Informationen darüber zu erhalten, kontaktieren Sie uns.
Zusätzliche Dienstleistungen
Als geschätzter Kunde unseres Unternehmens genießen Sie den Vorteil, die Dienste unseres erfahrenen Rechtsteams kostenfrei in Anspruch zu nehmen. Darüber hinaus bieten wir Ihnen umfassende Lösungen, darunter Gebäudeversicherungen, kostenlose Finanzberatung sowie attraktive Finanzierungskonditionen. Unser Leistungsspektrum umfasst auch die Bereiche Wiederverkauf, Vermietung und Immobilienverwaltung. Hochwertige Renovierungen und Einrichtungsarbeiten vermitteln wir Ihnen über spezialisierte Unternehmen unserer Unternehmensgruppe, mit denen wir seit Langem zusammenarbeiten.
Besichtigungen
Wir können eine Besichtigung der Immobilie zu einer für Sie passenden Zeit vereinbaren. Bitte kontaktieren Sie den für dieses Angebot zuständigen Makler und teilen Sie ihm die von Ihnen gewünschte Uhrzeit mit.
Reservierung der Immobilie
Gegen eine nicht erstattete Anzahlung in Höhe von 2.000 Euro wird die Immobilie reserviert. Weitere Besichtigungen mit anderen Käufern finden nicht statt und Makler beginnt mit der Vorbereitung der Dokumente für den Abschluss des endgültigen Vertrags für Eigentumsübertragung. Bitte kontaktieren Sie den zuständigen Makler für mehr Information über den Kauf einer Immobilie und Zahlungsarten.
Zusatzleistungen und Kundendienst
Wir sind ein seriöses Unternehmen und werden nicht nur während des Kaufs, sondern auch danach bei Ihnen sein und Ihnen auf Ihren Wunsch zusätzliche Dienstleistungen anbieten, um die neu gekaufte Immobilie vollständig und nahtlos zu nutzen. Die Dienstleistungen, die wir anbieten können, umfassen die Erlangung einer Hypothekengenehmigung, eine Versicherung für bewegliche und unbewegliche Sachen, eine Lebensversicherung, eine Kranken- und Autoversicherung, Bau- und Reparaturaktivitäten, Möbel, Rechts- und Buchhaltungsdienstleistungen usw.
Bei uns können Sie nicht nur eine Immobilie mieten, sondern auch eine Reihe von Zusatzleistungen in Anspruch nehmen. Wir können Versicherungen für bewegliches und unbewegliches Vermögen, Lebensversicherungen, Kranken- und Kfz-Versicherungen, Bau- und Reparaturarbeiten, Möbel, Rechts- und Buchhaltungsdienstleistungen usw. anbieten.
Lesen Sie den Text in anderen Sprachen (automatische Übersetzung)
Standort (ungefähr)
Auf der Karte ist der ungefähre Standort der Immobilie/des Wohnkomplexes mit roter Markierung angezeigt.
Схема на плащане
5000 евро СТОП капаро;
Първа вноска – 30% при подписване на предварителен договор;
Втора вноска – 30% при Акт 14;
Трета вноска – 30% при Акт 15;
Четвърта вноска – 10% при Акт 16.
Unsere Top-Angebote über zum verkauf im Sozopol, Bulgarien
Immobilien nach Typ, Sozopol
- 2-Raum-Apartments im Sozopol
- 3-Raum-Apartments im Sozopol
- Häuser im Sozopol
- 1-Raum-Apartments im Sozopol
- Apartments (verschiedene Typen) im Sozopol
- Investitionsgrundstücke im Sozopol
- Regulierte Grundstücke im Sozopol
- Mehr-Zimmer-Apartments im Sozopol
- Doppelhaus im Sozopol
- Reihenhäuser im Sozopol
Beliebste Suchaufträge
- Landhäuser in Bulgarien
- Immobilien zur Miete in Bulgarien
- Immobilien zum Kauf in Bulgarien
- Häuser zum Kauf in Bulgarien
- Immobilien zur Miete im Varna
- Immobilien in Bulgarien
- Immobilien zum Kauf im Varna
- Häuser in Bulgarien
- Immobilien im Varna
- Immobilien zur Miete im Burgas


ORIGINAL: