Anzahl der Etagen
5
Etage
2
Aufzug
ja
Zimmer
1
Badezimmer
1

Gesamtfläche
42.49 m²
Wohnfläche
35.61 m²
Gemeinschaftsräume
6.88 m²
Zustand
In Bauphase
Geplante Fertigstellung
Februar 2026

Preis
38 000 €
894 €/m²
Anfrage für mehr Information oder Besichtigung
Infopaket
Zustand
schl?sselfertig (mit Bodenbelag und lackiert)
Ausstattung
Boden
Laminatboden
Innere Wände
Gestrichene Wände
Entfernung
Letzte Aktualisierung
06.10.2025 t.
Entfernung zu
- Lift im Gebirge: 1.7km
- Flughafen Plovdiv (PDV): 80km
Heizung
- Elektroheizung
Administrative Information zum Angebot
GASVERSORGUNG, ELEKTRIZITÄT
- Strom
WASSERVERSORGUNG
- Wasserversorgung
SANITÄR- UND HILFSANLAGEN
- Badezimmer mit Toilette
DÄMMUNG UND INNENAUSBAU
- Außendämmung
- Dreifachverlasung
- Gestrichene Wände
- Granitboden
- Interieur-Türen
- Kunststofffenster
- Laminatboden
- Panzerztür
EXTRAS IM GEBÄUDE
- Aufzug
Der Text wurde ins Deutsche mithilfe einer automatischen Software übersetzt und es ist möglich, dass er Ungenauigkeiten enthält. Sie können den Text in der originalen Sprache oder seine Übersetzung in andere Sprachen lesen:
Wir präsentieren ein schlüsselfertiges Ferienstudio zum Verkauf in einem Neubau in Pamporovo, gelegen in einer malerischen Gegend mit sauberer Luft, wunderschöner Natur und der Möglichkeit zur vollkommenen Entspannung in den Bergen.
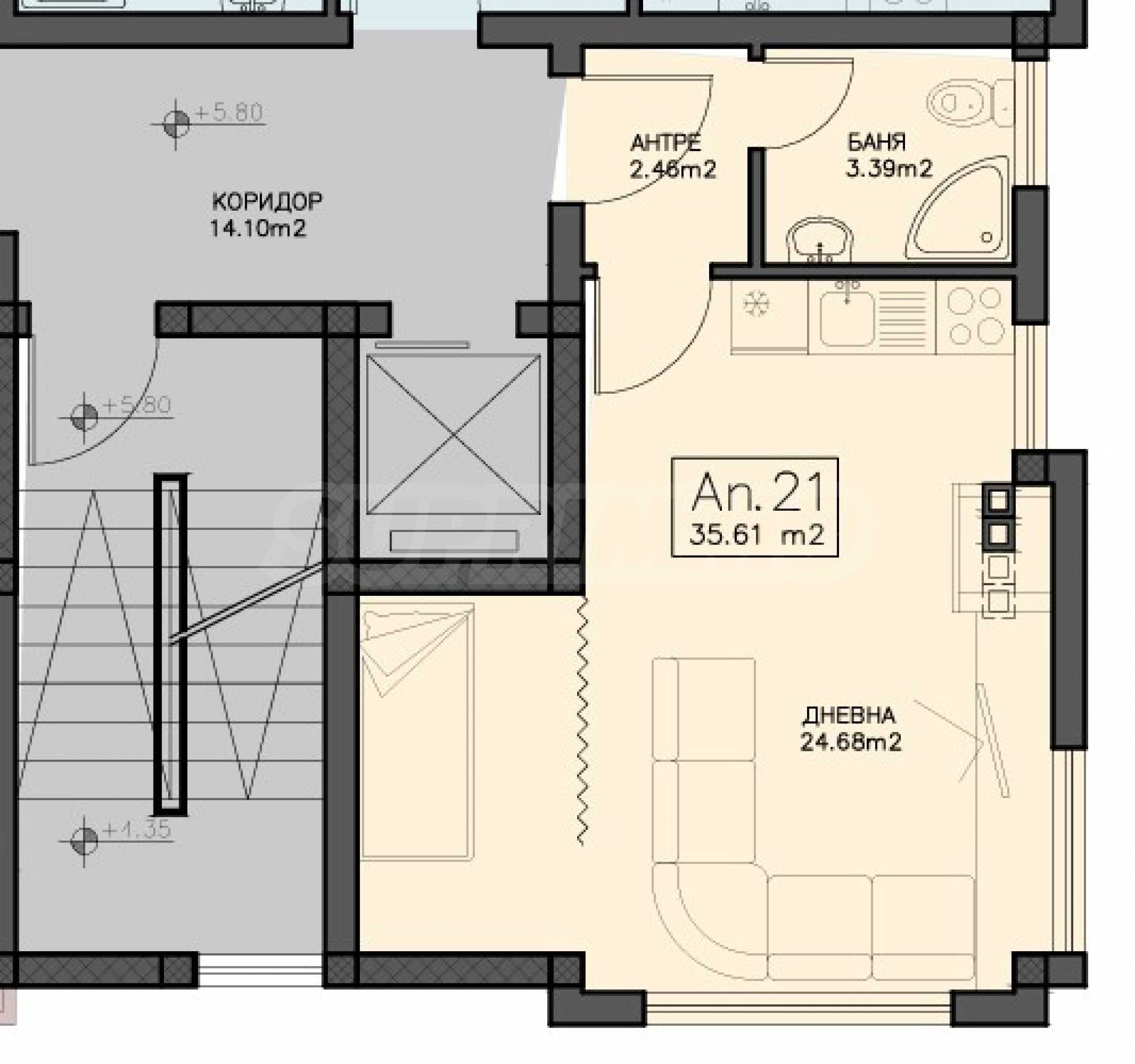
Die Immobilie befindet sich im 2. Stock und hat eine Gesamtfläche von 42,49 m². Sie besteht aus einem Eingangsbereich, Bad/WC, Wohnzimmer mit Küche – 24,68 m².
VOR GESETZ 15. GESETZ 16 - 02.2026
Pamporovo ist das südlichste Skigebiet Bulgariens und bekannt für sein mildes Klima, sonnige Wintertage und gepflegte Pisten. Es verfügt über 37 km Skipisten, die sowohl für Anfänger als auch für Fortgeschrittene geeignet sind. Die wichtigsten Skizentren bieten moderne Lifte, Skischulen und Ausrüstungsverleih, was das Resort zu einem idealen Standort für Wintertourismus und Investitionen macht.
Das Gebäude liegt im ruhigeren Teil des Resorts.
Das belebte Zentrum ist 15 Gehminuten entfernt, das Skizentrum 1 (Studenets) 1,7 km. In der Umgebung des Gebäudes befinden sich Villendörfer, Hotels, Geschäfte und Restaurants, die ein komfortables Umfeld für Erholung und Langzeitnutzung schaffen. Dank der günstigen Anbindung beträgt die Entfernung zum Flughafen Plovdiv 80 km und zum Flughafen Sofia 230 km.
Wohnungen
Bei den Immobilien handelt es sich um Studios, Ein- und Dreizimmerwohnungen, die schlüsselfertig und möbliert übergeben werden. Dies ist eine hervorragende Investitionsmöglichkeit, sowohl für den Eigengebrauch als auch zur Vermietung im Winter und Sommer.
Ausbauarbeiten im Eigenheim:
Das Gebäude verfügt über Außenparkplätze, die gegen eine jährliche Gebühr von 150 BGN pro Stellplatz genutzt werden können. Es besteht auch die Möglichkeit, nach Verhandlung einen Parkplatz zu erwerben.
Die Wartungsgebühr ist lediglich eine Eintrittsgebühr.
Wir freuen uns auf Ihre Anfrage.
Wenn Sie eine Besichtigung einer Immobilie Ihrer Wahl oder einen Besuch in einem unserer Büros vereinbaren möchten, kontaktieren Sie uns bitte. Um einen Termin für ein Treffen oder eine Besichtigung zu vereinbaren, rufen Sie die in der Anzeige angegebene Telefonnummer an oder senden Sie eine Anfrage per E-Mail. Unser Berater berät Sie gerne bei allen notwendigen Details und vereinbart einen passenden Termin für Sie.
Sie suchen die passende Immobilie für sich?
Zögern Sie nicht, uns zu kontaktieren und uns Ihre Wünsche und Bedürfnisse mitzuteilen. Unser Team führt eine gründliche Marktforschung durch, um Ihnen Immobilien anzubieten, die genau Ihren Kriterien entsprechen. Wir verfügen über ein außergewöhnliches Portfolio an hochwertigen und exklusiven Immobilien, die nur unseren Kunden zur Verfügung stehen. Um als Erster Informationen darüber zu erhalten, kontaktieren Sie uns.
Zusätzliche Dienstleistungen
Als geschätzter Kunde unseres Unternehmens genießen Sie die Vorteile unseres erfahrenen Rechtsanwaltsteams völlig kostenlos. Darüber hinaus bieten wir umfassende Lösungen, darunter Gebäudeversicherungen, kostenlose Finanzberatung sowie günstige Finanzierungskonditionen. Unsere Dienstleistungen umfassen auch den Wiederverkauf, die Vermietung und die Hausverwaltung. Hochwertige Renovierungen und Möblierungen führen wir durch spezialisierte Unternehmen unserer Unternehmensgruppe durch, die unsere langjährigen professionellen Partner sind.
Besichtigungen
Wir können eine Besichtigung der Immobilie zu einer für Sie passenden Zeit vereinbaren. Bitte kontaktieren Sie den für dieses Angebot zuständigen Makler und teilen Sie ihm die von Ihnen gewünschte Uhrzeit mit.
Reservierung der Immobilie
Gegen eine nicht erstattete Anzahlung in Höhe von 2.000 Euro wird die Immobilie reserviert. Weitere Besichtigungen mit anderen Käufern finden nicht statt und Makler beginnt mit der Vorbereitung der Dokumente für den Abschluss des endgültigen Vertrags für Eigentumsübertragung. Bitte kontaktieren Sie den zuständigen Makler für mehr Information über den Kauf einer Immobilie und Zahlungsarten.
Zusatzleistungen und Kundendienst
Wir sind ein seriöses Unternehmen und werden nicht nur während des Kaufs, sondern auch danach bei Ihnen sein und Ihnen auf Ihren Wunsch zusätzliche Dienstleistungen anbieten, um die neu gekaufte Immobilie vollständig und nahtlos zu nutzen. Die Dienstleistungen, die wir anbieten können, umfassen die Erlangung einer Hypothekengenehmigung, eine Versicherung für bewegliche und unbewegliche Sachen, eine Lebensversicherung, eine Kranken- und Autoversicherung, Bau- und Reparaturaktivitäten, Möbel, Rechts- und Buchhaltungsdienstleistungen usw.
Bei uns können Sie nicht nur eine Immobilie mieten, sondern auch eine Reihe von Zusatzleistungen in Anspruch nehmen. Wir können Versicherungen für bewegliches und unbewegliches Vermögen, Lebensversicherungen, Kranken- und Kfz-Versicherungen, Bau- und Reparaturarbeiten, Möbel, Rechts- und Buchhaltungsdienstleistungen usw. anbieten.
Die Immobilie befindet sich im 2. Stock und hat eine Gesamtfläche von 42,49 m². Sie besteht aus einem Eingangsbereich, Bad/WC, Wohnzimmer mit Küche – 24,68 m².
VOR GESETZ 15. GESETZ 16 - 02.2026
Pamporovo ist das südlichste Skigebiet Bulgariens und bekannt für sein mildes Klima, sonnige Wintertage und gepflegte Pisten. Es verfügt über 37 km Skipisten, die sowohl für Anfänger als auch für Fortgeschrittene geeignet sind. Die wichtigsten Skizentren bieten moderne Lifte, Skischulen und Ausrüstungsverleih, was das Resort zu einem idealen Standort für Wintertourismus und Investitionen macht.
Das Gebäude liegt im ruhigeren Teil des Resorts.
Das belebte Zentrum ist 15 Gehminuten entfernt, das Skizentrum 1 (Studenets) 1,7 km. In der Umgebung des Gebäudes befinden sich Villendörfer, Hotels, Geschäfte und Restaurants, die ein komfortables Umfeld für Erholung und Langzeitnutzung schaffen. Dank der günstigen Anbindung beträgt die Entfernung zum Flughafen Plovdiv 80 km und zum Flughafen Sofia 230 km.
Wohnungen
Bei den Immobilien handelt es sich um Studios, Ein- und Dreizimmerwohnungen, die schlüsselfertig und möbliert übergeben werden. Dies ist eine hervorragende Investitionsmöglichkeit, sowohl für den Eigengebrauch als auch zur Vermietung im Winter und Sommer.
Ausbauarbeiten im Eigenheim:
- Bodenbelag in Fluren, Bädern und Küchenbereich – Granitfliesen;
- Badezimmer – komplett fertiggestellt und ausgestattet mit Wasserhähnen, Duschen, Strukturen und Toiletten von Roca, Grohe oder Geberit, spanischen Granitfliesen, abgehängter Decke mit LED-Beleuchtung, Holzarbeitsplatte mit Waschbecken und Warmwasserbereiter;
- Wohnzimmer und Schlafzimmer – Laminatboden, mit Latexfarbe gestrichene Wände;
- Eingangstür – gepanzert.
- Heizung - mit Strom;
- Fassade – eine für die Region typische Kombination aus weißer Verkleidung und Holzverkleidung; in Weiß, Wärmedämmung, verputzt und mit Terrakotta gedübelt, Naturholz;
- Gemeinschaftsbereiche – stilvoll eingerichtet, jeder Eingang verfügt über einen Aufzug;
- Fensterrahmen – hochwertiges PVC mit REHAU-Profilen, Farbe Goldeiche mit 24 mm Verglasung; Fensterbänke bestehen aus Aluminiumprofilen der gleichen Farbe;
- Äußere und innere Trennwände mit 25 cm und 12 cm starkem roten Ziegelstein verkleidet.
Das Gebäude verfügt über Außenparkplätze, die gegen eine jährliche Gebühr von 150 BGN pro Stellplatz genutzt werden können. Es besteht auch die Möglichkeit, nach Verhandlung einen Parkplatz zu erwerben.
Die Wartungsgebühr ist lediglich eine Eintrittsgebühr.
Wir freuen uns auf Ihre Anfrage.
Wenn Sie eine Besichtigung einer Immobilie Ihrer Wahl oder einen Besuch in einem unserer Büros vereinbaren möchten, kontaktieren Sie uns bitte. Um einen Termin für ein Treffen oder eine Besichtigung zu vereinbaren, rufen Sie die in der Anzeige angegebene Telefonnummer an oder senden Sie eine Anfrage per E-Mail. Unser Berater berät Sie gerne bei allen notwendigen Details und vereinbart einen passenden Termin für Sie.
Sie suchen die passende Immobilie für sich?
Zögern Sie nicht, uns zu kontaktieren und uns Ihre Wünsche und Bedürfnisse mitzuteilen. Unser Team führt eine gründliche Marktforschung durch, um Ihnen Immobilien anzubieten, die genau Ihren Kriterien entsprechen. Wir verfügen über ein außergewöhnliches Portfolio an hochwertigen und exklusiven Immobilien, die nur unseren Kunden zur Verfügung stehen. Um als Erster Informationen darüber zu erhalten, kontaktieren Sie uns.
Zusätzliche Dienstleistungen
Als geschätzter Kunde unseres Unternehmens genießen Sie die Vorteile unseres erfahrenen Rechtsanwaltsteams völlig kostenlos. Darüber hinaus bieten wir umfassende Lösungen, darunter Gebäudeversicherungen, kostenlose Finanzberatung sowie günstige Finanzierungskonditionen. Unsere Dienstleistungen umfassen auch den Wiederverkauf, die Vermietung und die Hausverwaltung. Hochwertige Renovierungen und Möblierungen führen wir durch spezialisierte Unternehmen unserer Unternehmensgruppe durch, die unsere langjährigen professionellen Partner sind.
Besichtigungen
Wir können eine Besichtigung der Immobilie zu einer für Sie passenden Zeit vereinbaren. Bitte kontaktieren Sie den für dieses Angebot zuständigen Makler und teilen Sie ihm die von Ihnen gewünschte Uhrzeit mit.
Reservierung der Immobilie
Gegen eine nicht erstattete Anzahlung in Höhe von 2.000 Euro wird die Immobilie reserviert. Weitere Besichtigungen mit anderen Käufern finden nicht statt und Makler beginnt mit der Vorbereitung der Dokumente für den Abschluss des endgültigen Vertrags für Eigentumsübertragung. Bitte kontaktieren Sie den zuständigen Makler für mehr Information über den Kauf einer Immobilie und Zahlungsarten.
Zusatzleistungen und Kundendienst
Wir sind ein seriöses Unternehmen und werden nicht nur während des Kaufs, sondern auch danach bei Ihnen sein und Ihnen auf Ihren Wunsch zusätzliche Dienstleistungen anbieten, um die neu gekaufte Immobilie vollständig und nahtlos zu nutzen. Die Dienstleistungen, die wir anbieten können, umfassen die Erlangung einer Hypothekengenehmigung, eine Versicherung für bewegliche und unbewegliche Sachen, eine Lebensversicherung, eine Kranken- und Autoversicherung, Bau- und Reparaturaktivitäten, Möbel, Rechts- und Buchhaltungsdienstleistungen usw.
Bei uns können Sie nicht nur eine Immobilie mieten, sondern auch eine Reihe von Zusatzleistungen in Anspruch nehmen. Wir können Versicherungen für bewegliches und unbewegliches Vermögen, Lebensversicherungen, Kranken- und Kfz-Versicherungen, Bau- und Reparaturarbeiten, Möbel, Rechts- und Buchhaltungsdienstleistungen usw. anbieten.
Lesen Sie den Text in anderen Sprachen (automatische Übersetzung)
Standort (ungefähr)
Auf der Karte ist der ungefähre Standort der Immobilie/des Wohnkomplexes mit roter Markierung angezeigt.
Unsere Top-Angebote über zum verkauf im Pamporovo, Bulgarien
Immobilien nach Typ, Pamporovo
- 2-Raum-Apartments im Pamporovo
- Regulierte Grundstücke im Pamporovo
- 3-Raum-Apartments im Pamporovo
- 1-Raum-Apartments im Pamporovo
- Apartments (verschiedene Typen) im Pamporovo
- Hotels im Pamporovo
- Baugrundstücke mit Projekt im Pamporovo
- Investitionsgrundstücke im Pamporovo
Beliebste Suchaufträge
- Landhäuser in Bulgarien
- Immobilien zur Miete in Bulgarien
- Immobilien zum Kauf in Bulgarien
- Häuser zum Kauf in Bulgarien
- Immobilien zur Miete im Varna
- Immobilien in Bulgarien
- Immobilien zum Kauf im Varna
- Häuser in Bulgarien
- Immobilien im Varna
- Immobilien zur Miete im Burgas


ORIGINAL: