Klasse des Gebäudes/Komplexes
Luxus
Anzahl der Etagen
5
Etage
3-4
Aufzug
ja
Zimmer
3
Schlafzimmer
2
Badezimmer
2
Toiletten
1

Gesamtfläche
147.19 m²
Wohnfläche
119.53 m²
Gemeinschaftsräume
27.66 m²
Zustand
Vorläufige Verkäufe
Geplanter Beginn
2025
Erwartete Fertigstellung
Dezember 2026

Preis
235 504 €
(ohne MwSt)
1 600 €/m²
(ohne MwSt)
Provisionsfrei für den Käufer
Anfrage für mehr Information oder Besichtigung
Infopaket
Zustand
schl?sselfertig (mit Bodenbelag und lackiert)
Ausstattung
Badezimmer
Ausgestattetes Badezimmer
Boden
Parkettboden
Entfernung
Letzte Aktualisierung
29.11.2025 t.
Entfernung zu
- Lift im Gebirge: 2km
- Stadtzentrum: 2km
- Flughafen Sofia (SOF): 61km
Ausblick
- Gebirge
- Innenhof
- Skipiste
- Wald
Bau
- Hohe Decken (über 2.85 m)
- Komplett renovierte Immobilie
- Komplett renoviertes Gebäude
- Stahlbetonbau
- Ziegelwerk
Heizung
- Gasheizung
Administrative Information zum Angebot
GASVERSORGUNG, ELEKTRIZITÄT
- Strom
WASSERVERSORGUNG
- Wasserversorgung
FASSADE
- Hinterlüftete Fassade
- Holzfassade
- Mineralischer Putz
AUFZÜGE
- Luxuriöse Aufzüge
DACH
- Flachdach
KANALISATION
- Hauptdrainage
SANITÄR- UND HILFSANLAGEN
- Parkplatz
- Stellplatz
- Tiefgarage
DÄMMUNG UND INNENAUSBAU
- Dreifachverlasung
- Holzfenster
- Interieur-Türen
- Panzerztür
- Parkettboden
- Ziegelwände
AUSSTATTUNG UND AUSRÜSTUNG
- Ausgestattetes Badezimmer
EXTRAS IM GEBÄUDE
- Aufzug
- Fitnessraum
- Geschlossener Komplex
- Luxuriöse Gemeinschaftsräume
Der Text wurde ins Deutsche mithilfe einer automatischen Software übersetzt und es ist möglich, dass er Ungenauigkeiten enthält. Sie können den Text in der originalen Sprache oder seine Übersetzung in andere Sprachen lesen:
Wir präsentieren exklusiv eine Maisonette-Wohnung mit drei Schlafzimmern zum Verkauf in 7 Angels – einem luxuriösen Wohn- und Ferienkomplex inmitten der jahrhundertealten Kiefernwälder des majestätischen Rila-Gebirges.
Das Projekt wird kompromisslos umgesetzt und hat den Anspruch, zu einer der renommiertesten und prestigeträchtigsten Residenzen im aristokratischen Bergkurort Borovets in Bulgarien zu werden, der vor über 120 Jahren von Zar Ferdinand gegründet wurde. Es umfasst den vollständigen Umbau der beiden bestehenden Gebäude des ehemaligen Zodiac Hotels in Borovets und deren Umwandlung in eine luxuriöse Bergresidenz mit komfortablen Apartments und einem breiten Angebot an Annehmlichkeiten für die Bewohner.
MIT BAUGENEHMIGUNG!
Geplante Fertigstellung – Ende 2026.
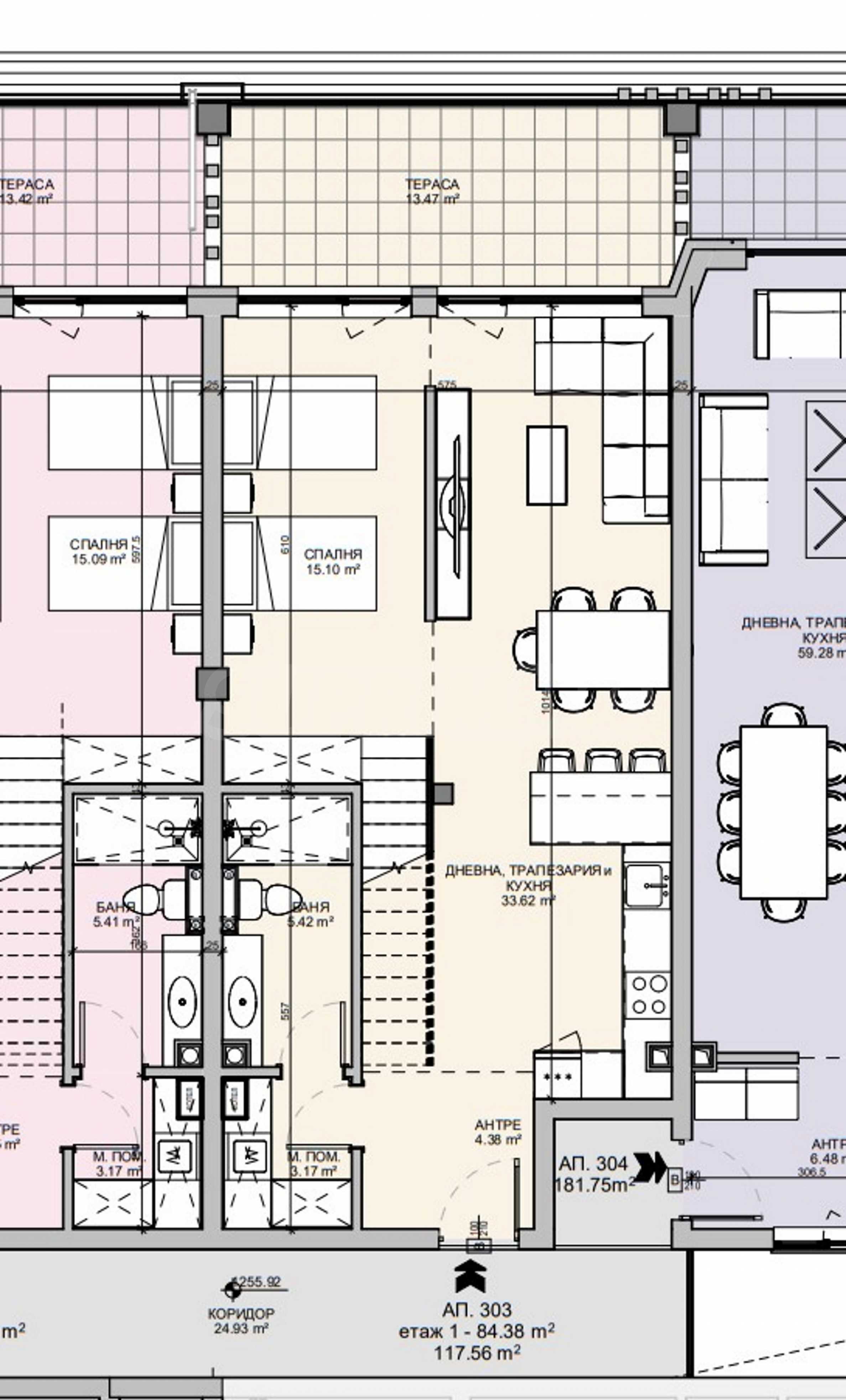
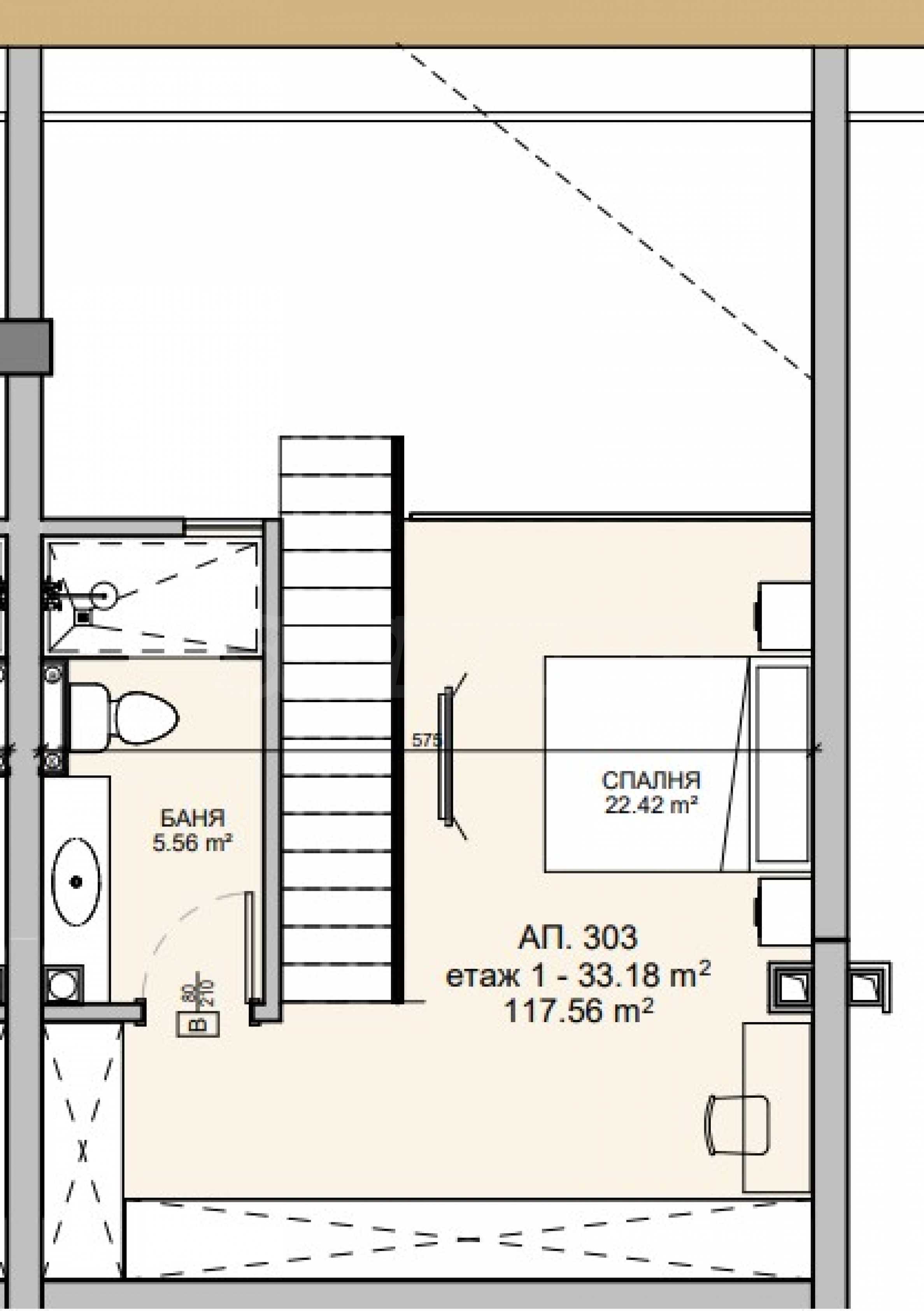
Die Wohnung befindet sich im 3. und 4. Obergeschoss und bietet eine Gesamtfläche von 147,19 m² (Nutzfläche 119,53 m² + Gemeinschaftsflächen 27,66 m²). Das erste Obergeschoss besteht aus Eingangsbereich, Wohnzimmer mit Kochnische, Schlafzimmer, Badezimmer mit WC und Terrasse. Im zweiten Obergeschoss befinden sich ein weiteres Schlafzimmer und ein Badezimmer mit WC.
Standort
Dank seiner abgeschiedenen Lage auf 1340 m Höhe bietet Borovets außergewöhnlich saubere Luft. Der Fluss Bistritsa, der das gesamte Gebiet durchfließt, erzeugt eine besondere Luftströmung, die zur Heilung und schnellen Genesung beiträgt. Die Region ist ideal für Winter- und Sommerurlaub und bietet Aktivitäten wie Skifahren, Mountainbiken, Bergwandern, Berglaufen, Klettern, Paragliding und Reiten. 58 km abwechslungsreiche Pisten eignen sich sowohl für Anfänger als auch für Fortgeschrittene. Das Zentrum des Ortes ist schnell erreichbar: Die Gondelbahn liegt nur 900 m entfernt, und eine 800 m lange Anfängerpiste ist nur 50 m entfernt.
Apartments mit Panoramablick – zur Eigennutzung oder als Kapitalanlage
Der Komplex ist in drei Abschnitte gegliedert: zwei Wohngebäude und ein dazwischenliegendes Restaurant, das die beiden Bereiche harmonisch miteinander verbindet. Die Gebäudehöhen betragen 2,50–2,60 Meter für Gebäude B und über 3,20 Meter für Gebäude A. Geplant sind 58 Wohnungen, die sich zusammenlegen lassen – Studios sowie Apartments mit ein, zwei und drei Schlafzimmern, teils mit Gartenterrasse, teils als Maisonette-Wohnungen. Die Wohnungen sind auf höchsten Wohnkomfort ausgelegt, und die Panoramaverglasung des Gebäudes sorgt für viel Tageslicht und einen atemberaubenden Blick auf die umliegende Natur.
Die Wohnungen werden bezugsfertig angeboten mit fertigen Parkettböden, Wänden, fertigen und ausgestatteten Badezimmern; dreischichtigen Holzfenstern und -türen in deutscher Profilbauweise mit Dreifachverglasung und Aluminiumabdeckung zum Schutz vor Kälte und Sonne für eine lange Lebensdauer; Sicherheitstüren am Eingang und MDF-Innentüren, installierte Heizkörper und ein Smart-Home-System sind im Preis inbegriffen. Die Beheizung erfolgt über individuelle Gasheizungen und Heizkörper.
7 Angels bietet in jedem Haus auch ein integriertes Smart-Home-System an, wobei zwei Optionen zur Auswahl stehen.
Option 1 (Basisversion) beinhaltet:
• Gaskesselsteuerung;
• Alarmanlagenverwaltung auf Wunsch des Kunden (einschließlich der Vorbereitung zur Aktivierung des Sicherheitssystems mit der Option, bei Bewegungserkennung Fotos aufzunehmen und das Bild in Echtzeit an den Eigentümer zu senden);
• Feueralarm;
• Begrüßungsbeleuchtung an der Schwelle jedes Hauses;
• Internet- und Kabelfernsehverwaltung.
Option 2 beinhaltet:
• Gaskesselsteuerung;
• Alarmanlagenverwaltung auf Wunsch des Kunden (einschließlich der Vorbereitung zur Aktivierung des Sicherheitssystems mit der Option, bei Bewegungserkennung Fotos aufzunehmen und das Bild in Echtzeit an den Eigentümer zu senden);
• Feueralarm;
• Begrüßungsbeleuchtung an der Schwelle jedes Hauses;
• Internet- und Kabelfernsehverwaltung;
• Automatische Bewegung der Vorhänge;
• Implementierung weiterer SMART HOME-Extras auf Wunsch des Kunden.
Jeder Eigentümer in 7 Angels erhält Zugang zum Captive Portal, über das er die Temperatur und den Energieverbrauch seines Hauses mithilfe eines digitalen Strom- und Gaszählers überwachen kann. Für zusätzlichen Komfort und Sicherheit sorgt ein QR-Code-System für den Zugang zum Parkplatz und den Einrichtungen des modernen Spa-Bereichs der Anlage.
Der angegebene Preis versteht sich exklusive Mehrwertsteuer.
Ein breites Spektrum an Erlebnissen
7 Angels wird nach dem Healthy Building-Konzept mit modernsten Bautechnologien und Lösungen für Energieeffizienz und ein angenehmes Wohnumfeld errichtet, und seine beeindruckende alpine Architektur ist von den besten Skigebieten der Schweiz inspiriert.
Die architektonische Vision wird durch luxuriös gestaltete Gemeinschaftsbereiche mit KONE-Aufzügen unterstrichen, und die Bewohner haben Zugang zu einem Premium-Markenrestaurant, einem italienischen Café, einem Skiraum, einem hochmodernen Wellness- und SPA-Center mit Innen- und Außensaunen, einem kleinen Pool mit Diffusoren, einem Dampfbad und Massageräumen sowie einem Fitnesscenter mit Fitnessgeräten von Kettler und Tehnogym.
Es wird ein ganztägiger kostenloser Transport vom Komplex zur Gondelstation angeboten, und in der Nähe wird ein Kinderbereich mit Spielen und Unterhaltung errichtet.
7 Engel – wenn die Natur heilt
7 Angels bietet nicht nur modernste Annehmlichkeiten, sondern auch eine unmittelbare Begegnung mit den heilenden Kräften von Rila.
Der Komplex wird in einen idealen Ort der Ruhe und Erholung inmitten gesunder Natur und kristallklarer Luft verwandelt. Borovets ist seit jeher ein Ort der Behandlung und Rehabilitation von Lungenerkrankungen, und der reißende Fluss Bistritsa, der in der Nähe des Komplexes „Sieben Engel“ fließt, reichert die Luft zusätzlich mit Sauerstoff an.
Die besondere Energie dieses Ortes verbindet sich mit dem Fachwissen erfahrener Heiler der Naturheilkunde, die regelmäßig in den beiden eigens dafür eingerichteten Praxisräumen anzutreffen sein werden. Sie profitieren von den Fähigkeiten von Spezialisten in Ayurveda, Irisdiagnostik, Yumeiho-Therapie und vielen weiteren Bereichen, wodurch Ihr Aufenthalt im 7 Angels zu einem ganzheitlichen Erlebnis für Körper und Seele wird.
Im 7 Angels erwartet Sie eine Reise zu sich selbst, fernab vom Lärm der Stadt, umgeben von einem jahrhundertealten Kiefernwald.
Wenn Sie sich aktiv erholen möchten, bietet 7 Angels zahlreiche Sportmöglichkeiten in der Nähe. Derzeit wird ein Projekt zum Bau mehrerer Radwege in der Gegend realisiert, die sowohl im Resort als auch in den Bergen optimale Bedingungen zum Radfahren bieten. Im Winter ist die Skipiste neben der Anlage ideal für Anfänger und Kinder.
Möglichkeit zum Erwerb eines eigenen Parkplatzes auf dem Außenparkplatz des Komplexes oder in der Tiefgarage:
Standardzahlungsmodell:
Zahlungsplan mit einer kleinen Anzahlung und einer großen Schlusszahlung gemäß Akt 16 (1750 Euro/m² ohne MwSt.):
Wartungsgebühr
Die obligatorische Instandhaltungsgebühr ist für die ersten 2 Jahre auf 15 Euro/m² zuzüglich Mehrwertsteuer der Gesamtfläche des Hauses einschließlich der Gemeinschaftsflächen festgelegt.
Mit seinem nachhaltigen und innovativen Konzept bietet 7 Angels die Möglichkeit, in einem gesunden Umfeld mit erstklassigen Annehmlichkeiten und in unmittelbarer Nähe zu den Skipisten und Liften des Resorts zu leben. Kontaktieren Sie uns für weitere Informationen und eine professionelle Beratung!
Besichtigungen
Wir können eine Besichtigung der Immobilie zu einer für Sie passenden Zeit vereinbaren. Bitte kontaktieren Sie den für dieses Angebot zuständigen Makler und teilen Sie ihm die von Ihnen gewünschte Uhrzeit mit.
Reservierung der Immobilie
Gegen eine nicht erstattete Anzahlung in Höhe von 2.000 Euro wird die Immobilie reserviert. Weitere Besichtigungen mit anderen Käufern finden nicht statt und Makler beginnt mit der Vorbereitung der Dokumente für den Abschluss des endgültigen Vertrags für Eigentumsübertragung. Bitte kontaktieren Sie den zuständigen Makler für mehr Information über den Kauf einer Immobilie und Zahlungsarten.
Zusatzleistungen und Kundendienst
Wir sind ein seriöses Unternehmen und werden nicht nur während des Kaufs, sondern auch danach bei Ihnen sein und Ihnen auf Ihren Wunsch zusätzliche Dienstleistungen anbieten, um die neu gekaufte Immobilie vollständig und nahtlos zu nutzen. Die Dienstleistungen, die wir anbieten können, umfassen die Erlangung einer Hypothekengenehmigung, eine Versicherung für bewegliche und unbewegliche Sachen, eine Lebensversicherung, eine Kranken- und Autoversicherung, Bau- und Reparaturaktivitäten, Möbel, Rechts- und Buchhaltungsdienstleistungen usw.
Bei uns können Sie nicht nur eine Immobilie mieten, sondern auch eine Reihe von Zusatzleistungen in Anspruch nehmen. Wir können Versicherungen für bewegliches und unbewegliches Vermögen, Lebensversicherungen, Kranken- und Kfz-Versicherungen, Bau- und Reparaturarbeiten, Möbel, Rechts- und Buchhaltungsdienstleistungen usw. anbieten.
Das Projekt wird kompromisslos umgesetzt und hat den Anspruch, zu einer der renommiertesten und prestigeträchtigsten Residenzen im aristokratischen Bergkurort Borovets in Bulgarien zu werden, der vor über 120 Jahren von Zar Ferdinand gegründet wurde. Es umfasst den vollständigen Umbau der beiden bestehenden Gebäude des ehemaligen Zodiac Hotels in Borovets und deren Umwandlung in eine luxuriöse Bergresidenz mit komfortablen Apartments und einem breiten Angebot an Annehmlichkeiten für die Bewohner.
MIT BAUGENEHMIGUNG!
Geplante Fertigstellung – Ende 2026.
Die Wohnung befindet sich im 3. und 4. Obergeschoss und bietet eine Gesamtfläche von 147,19 m² (Nutzfläche 119,53 m² + Gemeinschaftsflächen 27,66 m²). Das erste Obergeschoss besteht aus Eingangsbereich, Wohnzimmer mit Kochnische, Schlafzimmer, Badezimmer mit WC und Terrasse. Im zweiten Obergeschoss befinden sich ein weiteres Schlafzimmer und ein Badezimmer mit WC.
Standort
Dank seiner abgeschiedenen Lage auf 1340 m Höhe bietet Borovets außergewöhnlich saubere Luft. Der Fluss Bistritsa, der das gesamte Gebiet durchfließt, erzeugt eine besondere Luftströmung, die zur Heilung und schnellen Genesung beiträgt. Die Region ist ideal für Winter- und Sommerurlaub und bietet Aktivitäten wie Skifahren, Mountainbiken, Bergwandern, Berglaufen, Klettern, Paragliding und Reiten. 58 km abwechslungsreiche Pisten eignen sich sowohl für Anfänger als auch für Fortgeschrittene. Das Zentrum des Ortes ist schnell erreichbar: Die Gondelbahn liegt nur 900 m entfernt, und eine 800 m lange Anfängerpiste ist nur 50 m entfernt.
Apartments mit Panoramablick – zur Eigennutzung oder als Kapitalanlage
Der Komplex ist in drei Abschnitte gegliedert: zwei Wohngebäude und ein dazwischenliegendes Restaurant, das die beiden Bereiche harmonisch miteinander verbindet. Die Gebäudehöhen betragen 2,50–2,60 Meter für Gebäude B und über 3,20 Meter für Gebäude A. Geplant sind 58 Wohnungen, die sich zusammenlegen lassen – Studios sowie Apartments mit ein, zwei und drei Schlafzimmern, teils mit Gartenterrasse, teils als Maisonette-Wohnungen. Die Wohnungen sind auf höchsten Wohnkomfort ausgelegt, und die Panoramaverglasung des Gebäudes sorgt für viel Tageslicht und einen atemberaubenden Blick auf die umliegende Natur.
Die Wohnungen werden bezugsfertig angeboten mit fertigen Parkettböden, Wänden, fertigen und ausgestatteten Badezimmern; dreischichtigen Holzfenstern und -türen in deutscher Profilbauweise mit Dreifachverglasung und Aluminiumabdeckung zum Schutz vor Kälte und Sonne für eine lange Lebensdauer; Sicherheitstüren am Eingang und MDF-Innentüren, installierte Heizkörper und ein Smart-Home-System sind im Preis inbegriffen. Die Beheizung erfolgt über individuelle Gasheizungen und Heizkörper.
7 Angels bietet in jedem Haus auch ein integriertes Smart-Home-System an, wobei zwei Optionen zur Auswahl stehen.
Option 1 (Basisversion) beinhaltet:
• Gaskesselsteuerung;
• Alarmanlagenverwaltung auf Wunsch des Kunden (einschließlich der Vorbereitung zur Aktivierung des Sicherheitssystems mit der Option, bei Bewegungserkennung Fotos aufzunehmen und das Bild in Echtzeit an den Eigentümer zu senden);
• Feueralarm;
• Begrüßungsbeleuchtung an der Schwelle jedes Hauses;
• Internet- und Kabelfernsehverwaltung.
Option 2 beinhaltet:
• Gaskesselsteuerung;
• Alarmanlagenverwaltung auf Wunsch des Kunden (einschließlich der Vorbereitung zur Aktivierung des Sicherheitssystems mit der Option, bei Bewegungserkennung Fotos aufzunehmen und das Bild in Echtzeit an den Eigentümer zu senden);
• Feueralarm;
• Begrüßungsbeleuchtung an der Schwelle jedes Hauses;
• Internet- und Kabelfernsehverwaltung;
• Automatische Bewegung der Vorhänge;
• Implementierung weiterer SMART HOME-Extras auf Wunsch des Kunden.
Jeder Eigentümer in 7 Angels erhält Zugang zum Captive Portal, über das er die Temperatur und den Energieverbrauch seines Hauses mithilfe eines digitalen Strom- und Gaszählers überwachen kann. Für zusätzlichen Komfort und Sicherheit sorgt ein QR-Code-System für den Zugang zum Parkplatz und den Einrichtungen des modernen Spa-Bereichs der Anlage.
Der angegebene Preis versteht sich exklusive Mehrwertsteuer.
Ein breites Spektrum an Erlebnissen
7 Angels wird nach dem Healthy Building-Konzept mit modernsten Bautechnologien und Lösungen für Energieeffizienz und ein angenehmes Wohnumfeld errichtet, und seine beeindruckende alpine Architektur ist von den besten Skigebieten der Schweiz inspiriert.
Die architektonische Vision wird durch luxuriös gestaltete Gemeinschaftsbereiche mit KONE-Aufzügen unterstrichen, und die Bewohner haben Zugang zu einem Premium-Markenrestaurant, einem italienischen Café, einem Skiraum, einem hochmodernen Wellness- und SPA-Center mit Innen- und Außensaunen, einem kleinen Pool mit Diffusoren, einem Dampfbad und Massageräumen sowie einem Fitnesscenter mit Fitnessgeräten von Kettler und Tehnogym.
Es wird ein ganztägiger kostenloser Transport vom Komplex zur Gondelstation angeboten, und in der Nähe wird ein Kinderbereich mit Spielen und Unterhaltung errichtet.
7 Engel – wenn die Natur heilt
7 Angels bietet nicht nur modernste Annehmlichkeiten, sondern auch eine unmittelbare Begegnung mit den heilenden Kräften von Rila.
Der Komplex wird in einen idealen Ort der Ruhe und Erholung inmitten gesunder Natur und kristallklarer Luft verwandelt. Borovets ist seit jeher ein Ort der Behandlung und Rehabilitation von Lungenerkrankungen, und der reißende Fluss Bistritsa, der in der Nähe des Komplexes „Sieben Engel“ fließt, reichert die Luft zusätzlich mit Sauerstoff an.
Die besondere Energie dieses Ortes verbindet sich mit dem Fachwissen erfahrener Heiler der Naturheilkunde, die regelmäßig in den beiden eigens dafür eingerichteten Praxisräumen anzutreffen sein werden. Sie profitieren von den Fähigkeiten von Spezialisten in Ayurveda, Irisdiagnostik, Yumeiho-Therapie und vielen weiteren Bereichen, wodurch Ihr Aufenthalt im 7 Angels zu einem ganzheitlichen Erlebnis für Körper und Seele wird.
Im 7 Angels erwartet Sie eine Reise zu sich selbst, fernab vom Lärm der Stadt, umgeben von einem jahrhundertealten Kiefernwald.
Wenn Sie sich aktiv erholen möchten, bietet 7 Angels zahlreiche Sportmöglichkeiten in der Nähe. Derzeit wird ein Projekt zum Bau mehrerer Radwege in der Gegend realisiert, die sowohl im Resort als auch in den Bergen optimale Bedingungen zum Radfahren bieten. Im Winter ist die Skipiste neben der Anlage ideal für Anfänger und Kinder.
Möglichkeit zum Erwerb eines eigenen Parkplatzes auf dem Außenparkplatz des Komplexes oder in der Tiefgarage:
- oberirdische Parkplätze - 8000 Euro ohne MwSt.;
- Tiefgaragenstellplätze - 12.000 Euro zuzüglich Mehrwertsteuer.
Standardzahlungsmodell:
- Reservierungsanzahlung - 7000 bis 11000 Euro je nach Wohnungstyp (die Anzahlung sichert die Immobilie bis zum ersten Spatenstich) - innerhalb von 14 Tagen nach Zahlung der Reservierungsanzahlung wird ein Vorvertrag unterzeichnet;
- 25 % abzüglich der Anzahlung – bei Unterzeichnung einer Vorvereinbarung;
- 25 % mit eingebauten Tischlerarbeiten;
- 30 % mit installierter Fassade;
- 20 % auf Gesetz 16.
Zahlungsplan mit einer kleinen Anzahlung und einer großen Schlusszahlung gemäß Akt 16 (1750 Euro/m² ohne MwSt.):
- Reservierungsanzahlung;
- 20 % des Immobilienpreises abzüglich der Anzahlung bei Erteilung einer Baugenehmigung + offiziell eröffneter Baustelle mit definierter Baulinie und -ebene sowie einem erstellten Protokoll, das die behördlichen und nivellierenden Bezugspunkte angibt;
- 80 % des Kaufpreises der Immobilie bei Erlass des Gesetzes Nr. 16 und Inbetriebnahme des Gebäudes sowie Erwerb des Eigentums an der Immobilie in notarieller Form.
Wartungsgebühr
Die obligatorische Instandhaltungsgebühr ist für die ersten 2 Jahre auf 15 Euro/m² zuzüglich Mehrwertsteuer der Gesamtfläche des Hauses einschließlich der Gemeinschaftsflächen festgelegt.
Mit seinem nachhaltigen und innovativen Konzept bietet 7 Angels die Möglichkeit, in einem gesunden Umfeld mit erstklassigen Annehmlichkeiten und in unmittelbarer Nähe zu den Skipisten und Liften des Resorts zu leben. Kontaktieren Sie uns für weitere Informationen und eine professionelle Beratung!
Besichtigungen
Wir können eine Besichtigung der Immobilie zu einer für Sie passenden Zeit vereinbaren. Bitte kontaktieren Sie den für dieses Angebot zuständigen Makler und teilen Sie ihm die von Ihnen gewünschte Uhrzeit mit.
Reservierung der Immobilie
Gegen eine nicht erstattete Anzahlung in Höhe von 2.000 Euro wird die Immobilie reserviert. Weitere Besichtigungen mit anderen Käufern finden nicht statt und Makler beginnt mit der Vorbereitung der Dokumente für den Abschluss des endgültigen Vertrags für Eigentumsübertragung. Bitte kontaktieren Sie den zuständigen Makler für mehr Information über den Kauf einer Immobilie und Zahlungsarten.
Zusatzleistungen und Kundendienst
Wir sind ein seriöses Unternehmen und werden nicht nur während des Kaufs, sondern auch danach bei Ihnen sein und Ihnen auf Ihren Wunsch zusätzliche Dienstleistungen anbieten, um die neu gekaufte Immobilie vollständig und nahtlos zu nutzen. Die Dienstleistungen, die wir anbieten können, umfassen die Erlangung einer Hypothekengenehmigung, eine Versicherung für bewegliche und unbewegliche Sachen, eine Lebensversicherung, eine Kranken- und Autoversicherung, Bau- und Reparaturaktivitäten, Möbel, Rechts- und Buchhaltungsdienstleistungen usw.
Bei uns können Sie nicht nur eine Immobilie mieten, sondern auch eine Reihe von Zusatzleistungen in Anspruch nehmen. Wir können Versicherungen für bewegliches und unbewegliches Vermögen, Lebensversicherungen, Kranken- und Kfz-Versicherungen, Bau- und Reparaturarbeiten, Möbel, Rechts- und Buchhaltungsdienstleistungen usw. anbieten.
Lesen Sie den Text in anderen Sprachen (automatische Übersetzung)
Standort (absolut genau)
Das ist absolut genauer Standort der Immobilie/des Wohnkomplexes. Wenn Sie sich auf die Karte mithilfe der Maus oder der "Kontrollen" auf der Karte bewegen, können Sie den Maßstab vergrößern oder verkleinern.
Unsere Top-Angebote über zum verkauf im Borovets, Bulgarien
Immobilien nach Typ, Borovets
- 3-Raum-Apartments im Borovets
- 2-Raum-Apartments im Borovets
- 1-Raum-Apartments im Borovets
- 4-Raum-Apartments im Borovets
- Häuser im Borovets
- Stellplätze im Borovets
- Baugrundstücke mit Projekt im Borovets
- Villen im Borovets
- Investitionsgrundstücke im Borovets
- Regulierte Grundstücke im Borovets
Beliebste Suchaufträge
- Landhäuser in Bulgarien
- Immobilien zur Miete in Bulgarien
- Immobilien zum Kauf in Bulgarien
- Häuser zum Kauf in Bulgarien
- Immobilien zur Miete im Varna
- Immobilien in Bulgarien
- Immobilien zum Kauf im Varna
- Häuser in Bulgarien
- Immobilien im Varna
- Immobilien zur Miete im Burgas


ORIGINAL: